EasyManua.ls Logo

Honda EC2000 - Page 54

Honda EC2000
88 pages
Print Icon
To Next Page IconTo Next Page
To Next Page IconTo Next Page
To Previous Page IconTo Previous Page
To Previous Page IconTo Previous Page
Loading...
12 IT
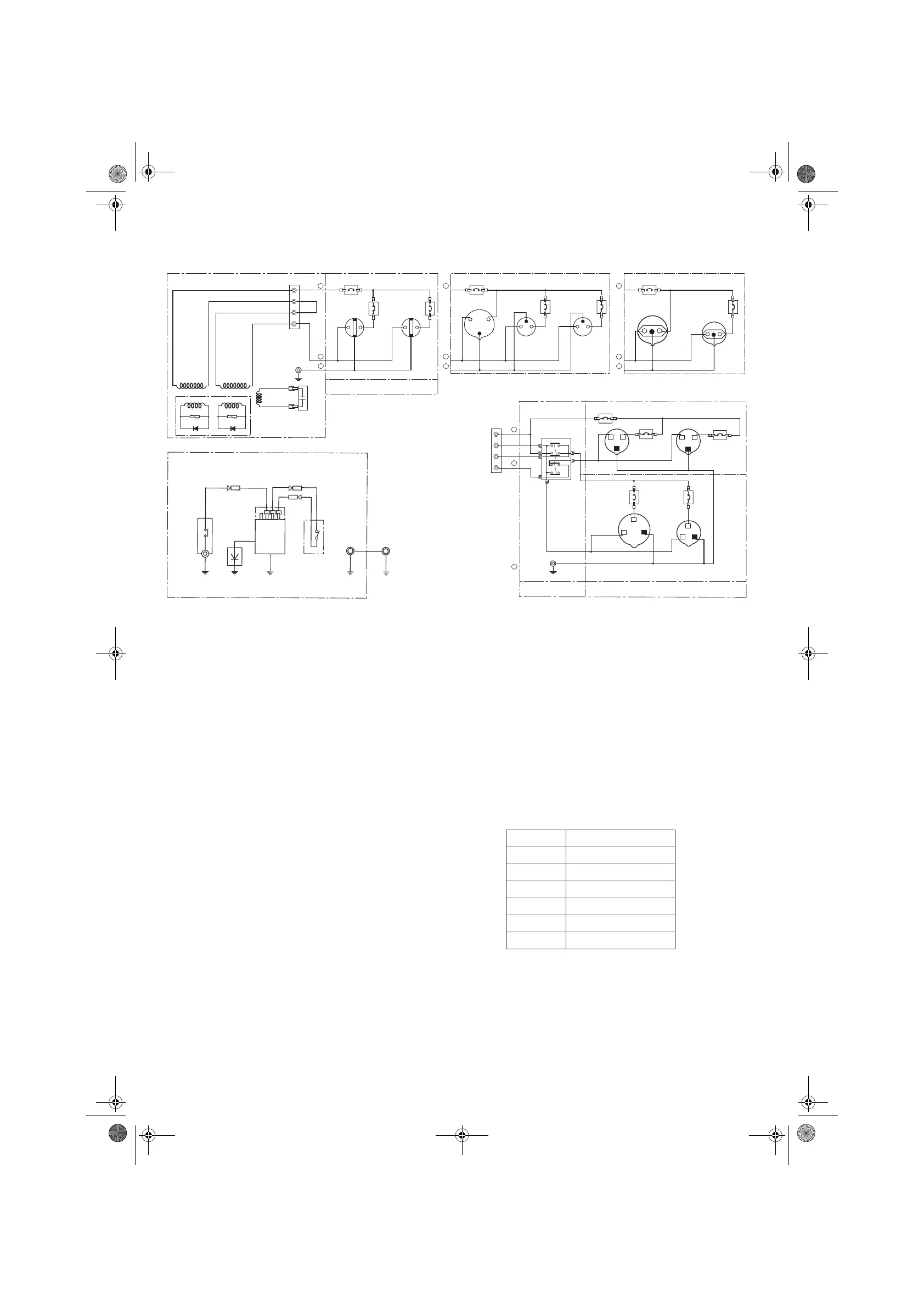
EC5000
[1] Gruppo generatore [12] Presa AC 115 V
[2] Presa AC [13] Gruppo motore
[3] Disgiuntori termici [14] Unità magnetica transistorizzata
[4] Presa C.A.
230 V / 16 A (blu) [15] Unità di allarme olio
[5]
Terminale di terra [16] Candela di accensione
[6]
Condensatore 35 µF [17] Bobina di accensione
[7] Gruppo scatola di comando [18] Interruttore motore
[8] Presa C.A.
230 V / 32 A (blu) [19] Interruttore di livello olio
[9] Selettore di tensione 115 / 230 V [20]
Terra del motore
[10] Presa C.A. 115 V / 32 A (giallo) [21] Terra del telaio
[11] Presa C.A.
115 V / 16 A (giallo)
[M1W] [M2W] Avvolgimento statorico
[EXW] Avvolgimento di eccitazione
[FW] Avvolgimento di campo
FGV, GVW IT
G
R
Y/G
Y/G
Y/G
G
[2]
[3]
[3]
G
a
b
c
R
G
R
[8]
GG
G
G
Y/G
G
G
R
Y/G
Y/G
Y/G
G
[2]
[3]
[4]
G
a
b
c
R
R
G
G
G
W
Y
RR
G
Y
G
R
Y/G
Y/G
Y/G
G
[1] [2]
[3]
[4]
[3]
[5]
G
a
b
c
R
G
R
[7]
[EXW]
[M1W] [M2W]
[FW]
[6]
GG
R
G
G
R
W
Y/G
Y/G
G
G
R
G
G
[12]
W
Y
A
B
C
D
3
5
6
1
4
2
G
R
G
Y/G
Y/G
W
W
Y
Y
Y
Y
Y
Y/G
Y/G
Y/G
Y
R
[2]
[3][3]
[9]
[3]
[3]
[4]
[3]
[3]
[10]
[11]
[5]
[7]
B
a
b
c
[3]
[4]
[3]
[3]
[8]
[4]
[4]
[4]
[13]
[19] [16] [17] [18]
[20] [21]
B
Y
R
R
B
Y
LED
OIL_ALT
EXT (-)
EXT (+)
Colori dei cavi
BNero
B
l Blu
G Verde
R Rosso
W Bianco
Y Giallo
Y/G Giallo / Verde
OM EC Serie_.book Page 12 Lundi, 12. mars 2012 9:27 09

Table of Contents

Related product manuals