EasyManua.ls Logo

HP DL380 - Cabling; SAS Hard Drive Cabling; Optical Drive Cabling

HP DL380
124 pages
Print Icon
To Next Page IconTo Next Page
To Next Page IconTo Next Page
To Previous Page IconTo Previous Page
To Previous Page IconTo Previous Page
Loading...
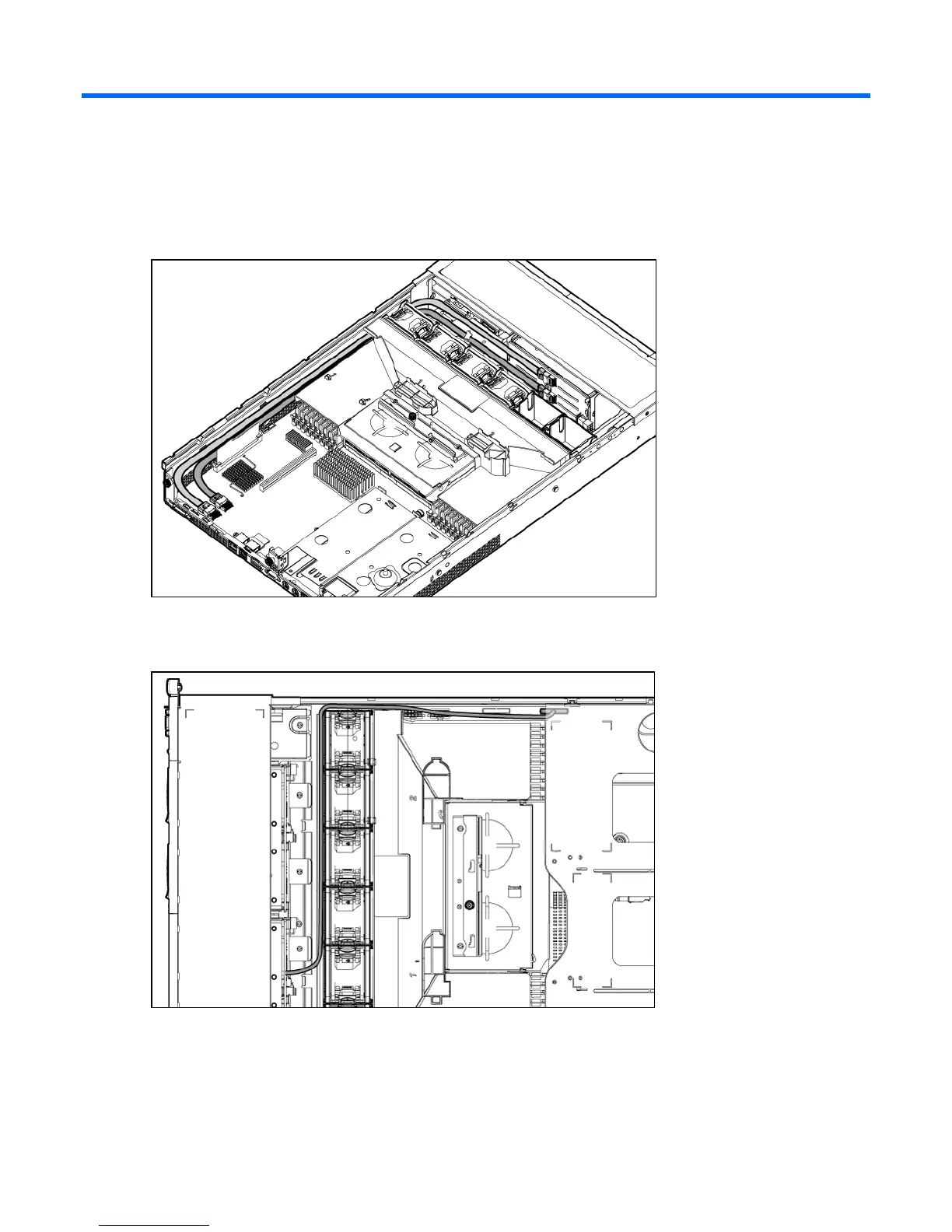
Cabling 68
Cabling
SAS hard drive cabling
Optical drive cabling

Related product manuals