EasyManua.ls Logo

HP DL385 - ProLiant - G5 - Hot-Plug Fans (6-Fan Configuration); Hot-Plug Fans (12-Fan Configuration)

HP DL385 - ProLiant - G5
115 pages
To Next Page IconTo Next Page
To Next Page IconTo Next Page
To Previous Page IconTo Previous Page
To Previous Page IconTo Previous Page
Loading...
Component identification 21
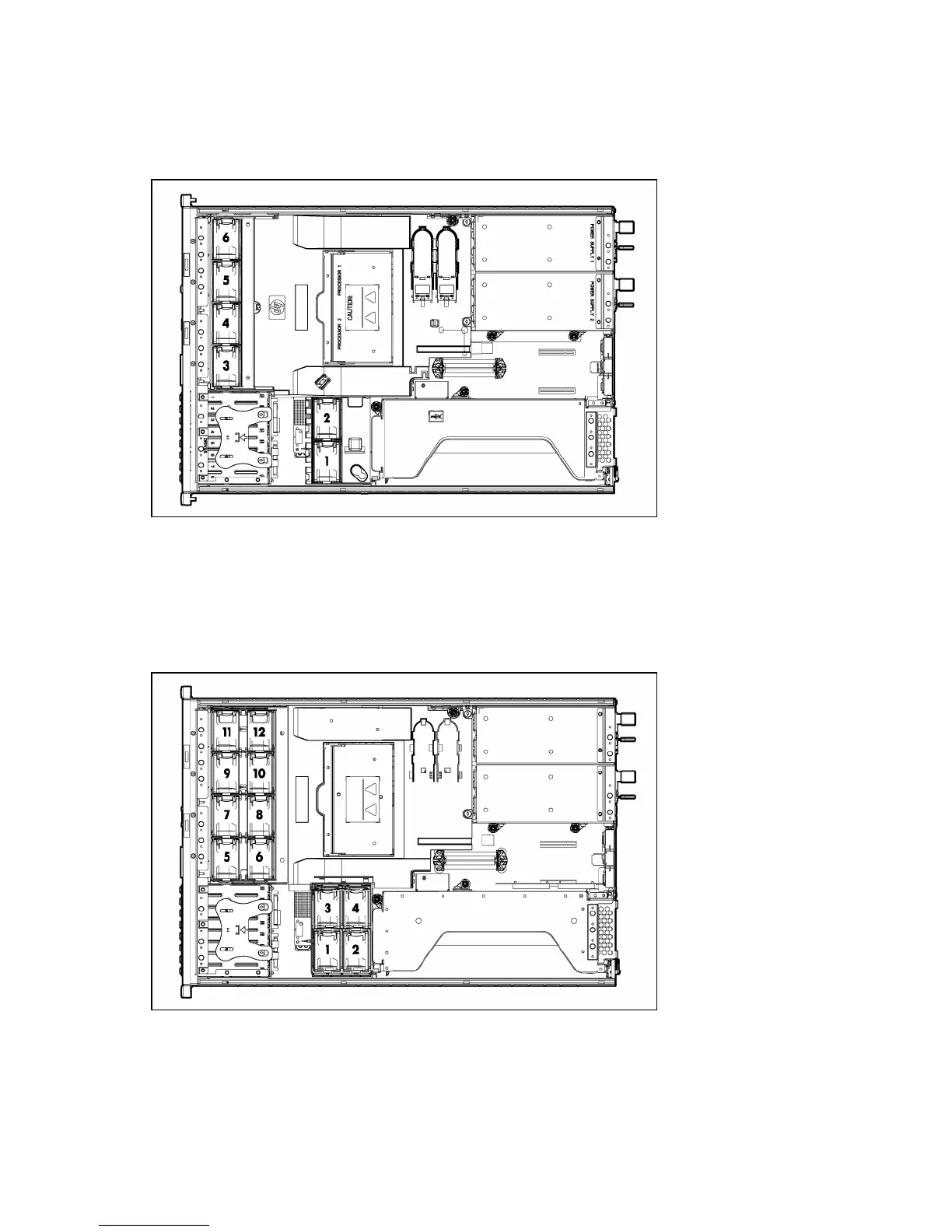
Hot-plug fans (6-fan configuration)
For server models that support six fans, the fan configuration operates in redundant mode when all six
fans are installed.
For more information, see "Hot-plug fan operation (on page 30)."
Hot-plug fans (12-fan configuration)
For server models that support 12 fans, the fan configuration operates in redundant mode when all 12
fans are installed.
For more information, see "Hot-plug fan operation (on page 30)."

Table of Contents

Related product manuals