EasyManua.ls Logo

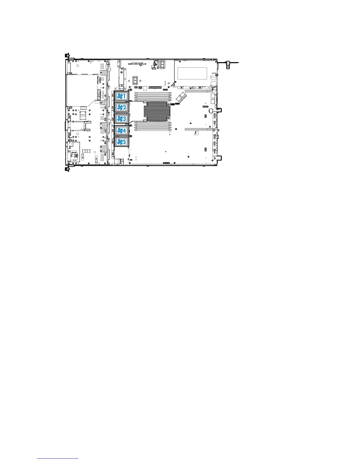
HP ProLiant DL120 Gen9 - Fan Locations

HP ProLiant DL120 Gen9
130 pages
To Next Page IconTo Next Page
To Next Page IconTo Next Page
To Previous Page IconTo Previous Page
To Previous Page IconTo Previous Page
Loading...
Component identification 16
Fan locations

Table of Contents

Other manuals for HP ProLiant DL120 Gen9

Related product manuals