EasyManua.ls Logo

HP ProLiant DL320 Generation 4

HP ProLiant DL320 Generation 4
70 pages
To Next Page IconTo Next Page
To Next Page IconTo Next Page
To Previous Page IconTo Previous Page
To Previous Page IconTo Previous Page
Loading...
Cabling 45
Cabling
In this section
Cabling overview................................................................................................................................... 45
Embedded SATA controller cable routing.................................................................................................. 45
Optional SAS/SATA controller cable routing............................................................................................. 46
Media cage cables................................................................................................................................. 47
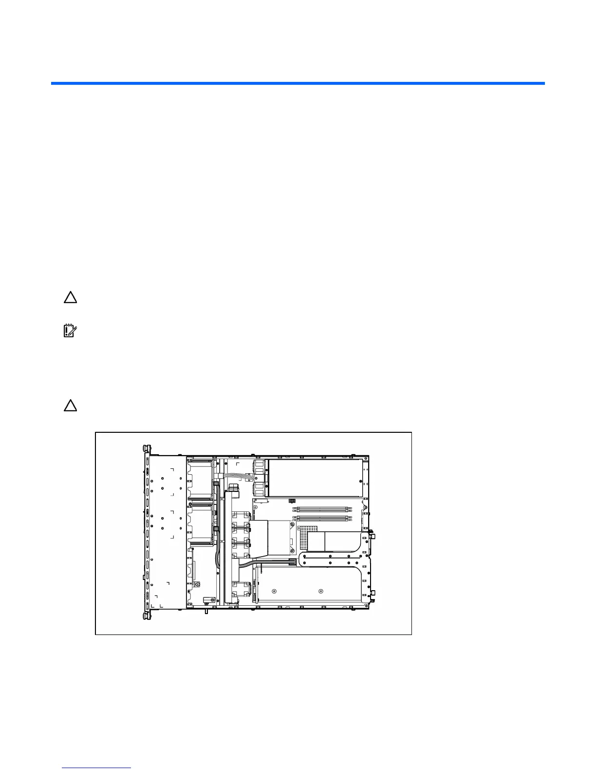
Cabling overview
This section provides guidelines that help you make informed decisions about cabling the server and
hardware options to optimize performance.
CAUTION: When routing cables, always be sure that the cables are not in a position where they can be
pinched or air flow can be blocked.
IMPORTANT: Route the cables without blocking the airflow or other installed components. Use the cable
clips installed in the chassis to manage cable routing.
Embedded SATA controller cable routing
CAUTION: When routing cables, always be sure that the cables are not in a position where they can be
pinched or air flow can be blocked.

Table of Contents

Related product manuals