EasyManua.ls Logo

HP ProLiant DL380 G6 - Cabling; SAS Hard Drive Cabling; Optical Drive Cabling

HP ProLiant DL380 G6
117 pages
To Next Page IconTo Next Page
To Next Page IconTo Next Page
To Previous Page IconTo Previous Page
To Previous Page IconTo Previous Page
Loading...
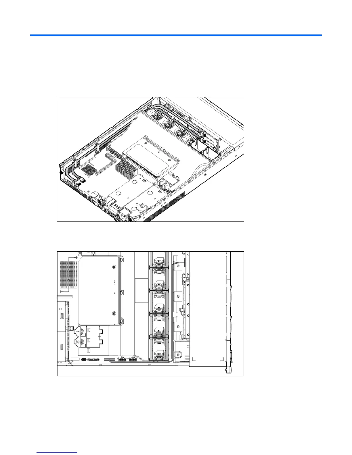
Cabling 63
Cabling
SAS hard drive cabling
Optical drive cabling

Table of Contents

Other manuals for HP ProLiant DL380 G6

Related product manuals