EasyManua.ls Logo

HP ProLiant DL385 G5p - Battery Pack Leds

HP ProLiant DL385 G5p
89 pages
To Next Page IconTo Next Page
To Next Page IconTo Next Page
To Previous Page IconTo Previous Page
To Previous Page IconTo Previous Page
Loading...
Component identification 77
Status
On = AC power is connected.
Off = AC power is disconnected.
Missing = Riser is not installed and power might be connected.
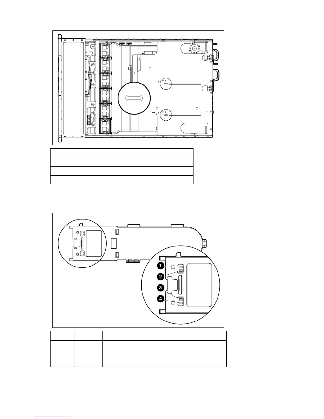
Battery pack LEDs
Item ID Color Description
1
Green System Power LED. This LED glows steadily when the system
is powered up and 12 V system power is available. This
power supply is used to maintain the battery charge and
provide supplementary power to the cache microcontroller.

Table of Contents

Related product manuals