EasyManua.ls Logo

HP ProLiant DL580 G7 - Cabling; DVD-ROM Drive Cabling

HP ProLiant DL580 G7
130 pages
To Next Page IconTo Next Page
To Next Page IconTo Next Page
To Previous Page IconTo Previous Page
To Previous Page IconTo Previous Page
Loading...
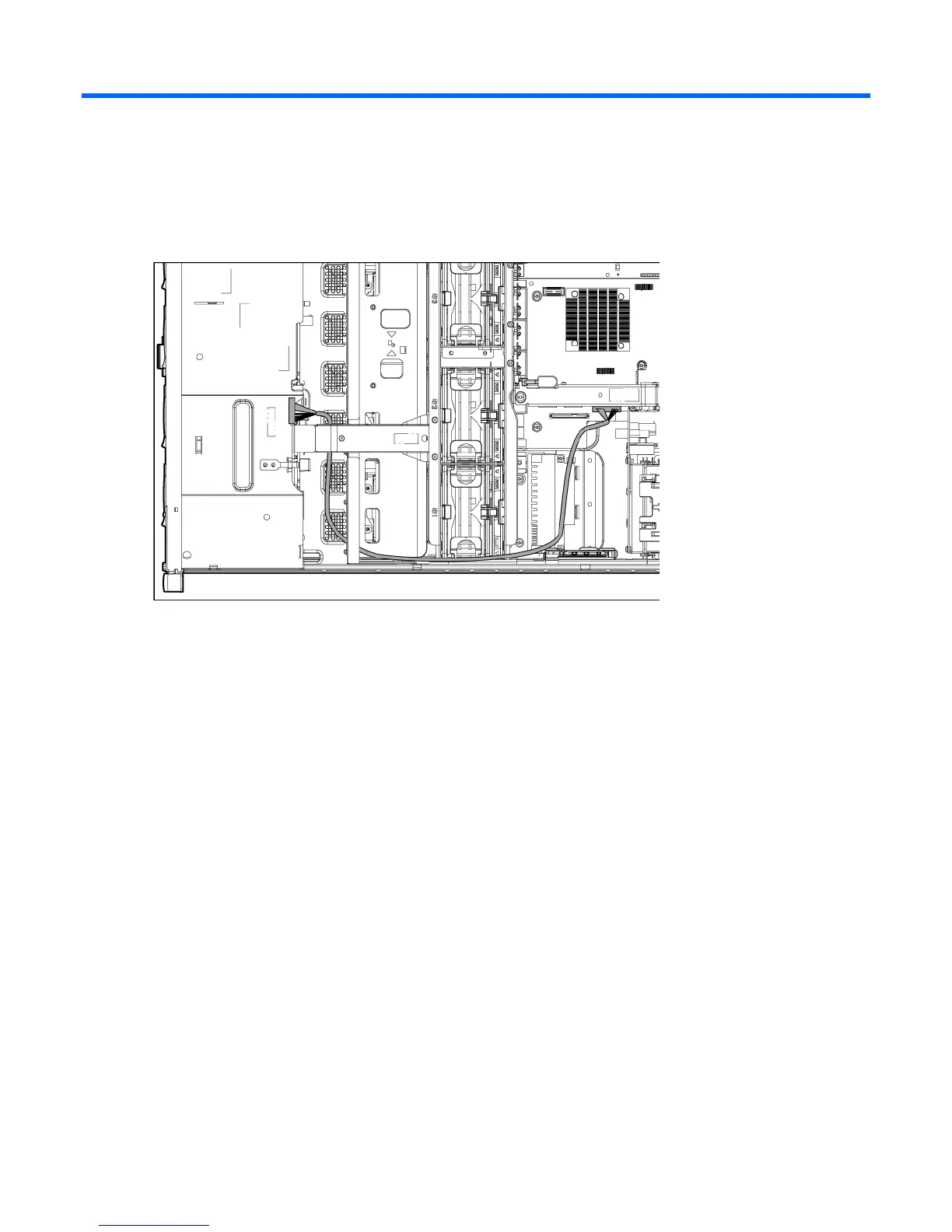
Cabling 74
Cabling
DVD-ROM drive cabling

Table of Contents

Other manuals for HP ProLiant DL580 G7

Related product manuals