EasyManua.ls Logo

HP ProLiant DL585 G7 - Cabling; DVD-ROM Drive Cabling

HP ProLiant DL585 G7
126 pages
To Next Page IconTo Next Page
To Next Page IconTo Next Page
To Previous Page IconTo Previous Page
To Previous Page IconTo Previous Page
Loading...
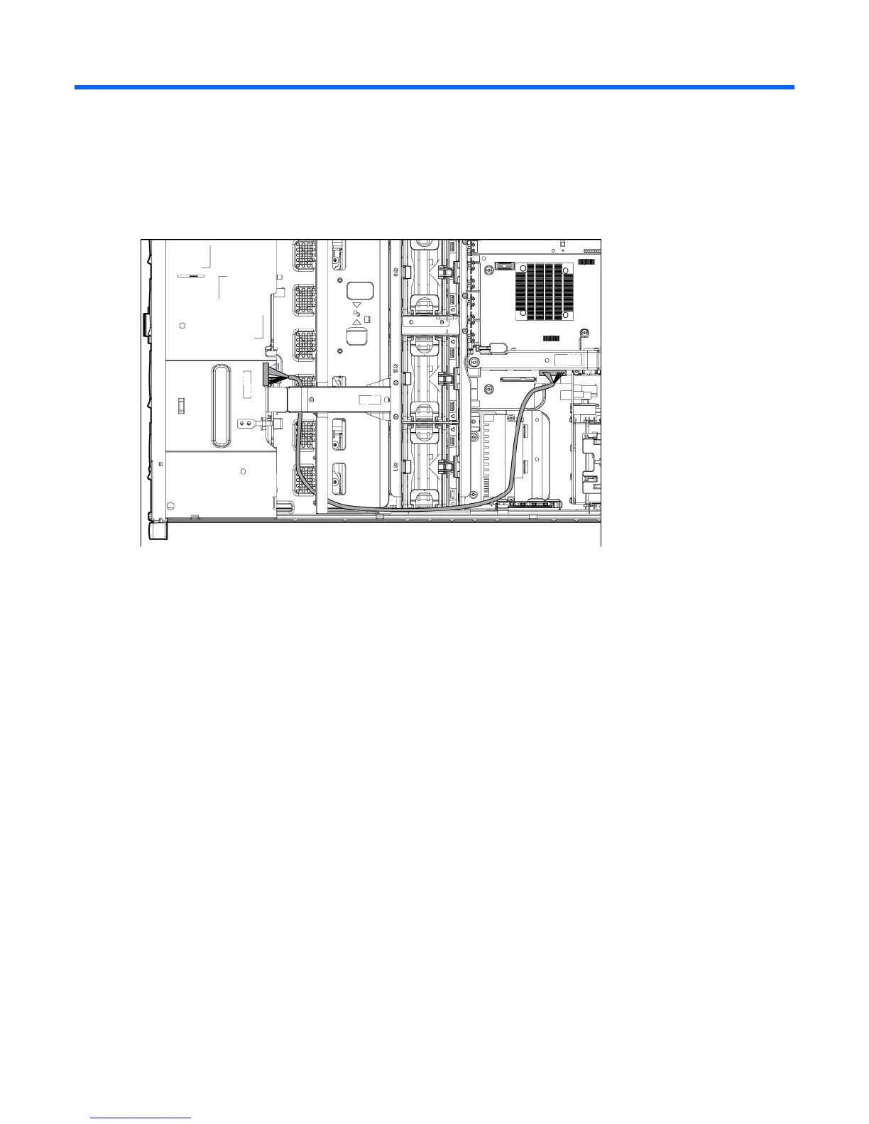
Cabling 71
Cabling
DVD-ROM drive cabling

Table of Contents

Other manuals for HP ProLiant DL585 G7

Related product manuals