EasyManua.ls Logo

Hunter 50CC - Page 138

Hunter 50CC
200 pages
Print Icon
To Next Page IconTo Next Page
To Next Page IconTo Next Page
To Previous Page IconTo Previous Page
To Previous Page IconTo Previous Page
Loading...
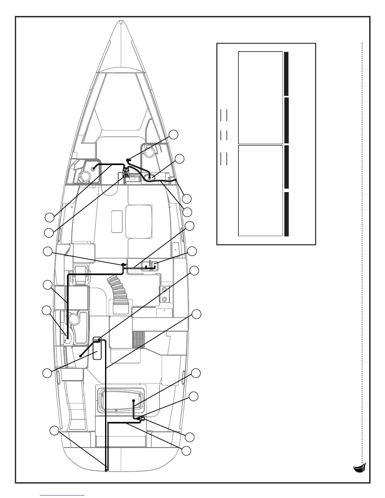
10.1
2
1. FWD VANITY THRU HULL FITTING WITH BALL VALVE (Ø 1")
2. FWD VANITY SINK
3. FWD SHOWER SUMP THRU HULL FITTING (Ø3/4")
4. FWD SUMP DISCHARGE HOSE (Ø 3/4")
5. GALLEY SINK DISCHARGE HOSE (Ø11/2")
6. GALLEY SINK
7. AFT SHOWER SUMP PUMP
8. AFT SHOWER SUMP DISCHARGE HOSE (Ø3/4")
9. AFT CABIN SOAKING TUB DRAIN HOSE (Ø1 1/2")
10. SOAKING TUB DRAIN FILTER
11. SOAKING TUB DISCHARGEPUMP
12. SOAKING TUB PUMP DISCHARGE HOSE (Ø3/4")
13. AFT VANITY / SOAKING TUB DISCHARGE THRU HULL FITTING
14. AFT SUMP PUMP PLATFORM
15. AFT VANITY SINK
16. AFT VANITY SINK DRAIN HOSE (Ø1")
17. GALLEY / AFT VANITY SINK DISCHARGE THRU HULL FITTING (Ø1")
18. FWD SHOWER SUMP PUMP
19. FWD SHOWER SUMP DISCHARGE HOSE (Ø11/8")
10
2
4
8
9
18
7
5
6
1
3
11
12
13
14
15
16
17
19
50cc WASTE WATER SYSTEM
(
GRAY WATER
)
GARBAGE - Means paper,
rags, glass, metal, crockery
(generated in living spaces
aboard the vessel-what we
normally call trash), and all
kinds of food, maintenance
andcargo-associated waste
“Garbage” does not include
fresh sh or sh parts,
dishwater and gray water.
PLASTIC -
Includes but is not
limited to : plastic bags
styrofoam cups and lids,
sixpack holders, stirrers,
synthetic shing nets, ropes,
lines, and bio or photo degrad-
able plastics.
M
ATERIAL
S
THAT FL
O
A
T
INSIDE 3 MILES
(
and in U.
S
. Rivers
,
Ba
y
s and
S
ounds
)
PLA
S
TI
CS
D
UNNA
G
E, LININ
G
AND PA
C
KIN
G
ANY
G
ARBA
G
E EX
C
EPT DI
S
HWATER
G
RAYWATER, FRE
S
H FI
S
HPART
S
3 TO 12 MILES
PLA
S
TI
CS
DUNNA
G
E, LININ
G
AND PA
C
KIN
G
M
ATERIAL
S
THAT FL
O
A
T
ANY
G
ARBA
G
E N
O
T
G
R
OU
ND T
O
LE
SS
T
HAN
O
NE
SQ
UARE IN
CH
12 TO 25 MILES
PLA
S
TI
CS
D
UNNA
G
E, LININ
G
AND PA
C
KIN
G
M
ATERIAL
S
THAT FL
O
AT
12 TO 25 MILES
P
LA
S
TI
CS
DUNNAGE-Materialused to
block and brace cargo, and is
considered a cargo associ
ated waste.
DISHWATER- Means the liq
uid residue from the manual
or automatic washing of
dishes and cooking utinsils
which have been pre-cleaned
to the extent that any food
particles adhering to them
would normally interfere
with the operation of auto
matic dishwashers.
GRAYWATER- Means drain
age from a dishwasher,
shower, laundry, bath, and
washbasin, and does not in
clude drainage from toilets,
urinals, hospitals, and cargo
spaces.
S
ave
O
ur
S
eas !
It is illegal to dump plastic trash anywhere into the ocean or navigatable waters of the
United States. Violation of these requirements
may result in civil penalty up to $25,000, a fine of $50,000 and imprisonment for up to five years.

Table of Contents

Related product manuals