EasyManua.ls Logo

Hussmann ISLA Series - Page 39

Hussmann ISLA Series
52 pages
Print Icon
To Next Page IconTo Next Page
To Next Page IconTo Next Page
To Previous Page IconTo Previous Page
To Previous Page IconTo Previous Page
Loading...
39
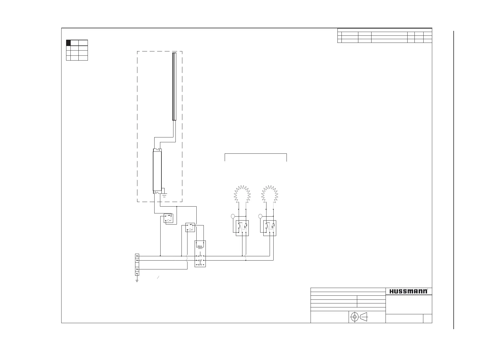
Wiring Diagrams (Cont'd)
HUSSMANN_GDF_1.1 SHEET SIZE D
MATERIAL - N/A
THIRD
ANGLE
PROJECTION
UNLESS OTHERWISE SPECIFIED DIMENSIONS ARE IN INCHES.
DRAWN BY -CRAIG BOOREY
APPROVED BY - CRAIG BOOREY
TOLERANCES ARE:
DECIMALS .XX
u.03, .XXX u.010
ANGLES
u 2v
DATE DRAWN - 5-31-16
ECN-CAP-0001707
REVIEWED BY -CRAIG BOOREY
REF -
W6600205
DIAGRAM-IM-05-E5-
FS
REV ECN DATE REVISION DESCRIPTION REV BY CHKD BY APPR BY
A ECN-CAP-0001707 2016/05/31 RELEASED TO PRODUCTION CB CB CB
REVISION HISTORY
NOTES:
CASE MUST BE GROUNDED
WHEN PASSING WIRES THROUGH METAL HOLES A GROMMET MUST BE USED
A
SHEET 1 OF 1
CIRCUIT #1
L1
L2
L3
LOADING
4.4
4.3
5.1
5.0
894W @ 208VAC
1224W @ 240VAC
208V 240V
~240 VAC, 1O, 60 Hz.
CONTACTOR
SQUARE -D
8910DPA43V02
125-01-1001
L
SWITCH
(2)125-01-0311
TERMINAL
BLOCK
125-01-0295
RED # 14
L1
L2
N
G
BLK # 14
L
H1
L1
L2
H2
P
L
H1
L1
L2
H2
P
L
(2) SOUP WARMERS
MODEL#HWB-11QT 1H33446550
MODEL#HWB-7QT 1H73817550
MODEL#HWB-11QT 1H73818550
2.5 AMPS @240V
600WATTS
LIGHT CIRCUIT 7W 0.06A
@ 120VAC
LED DRIVER
RED +
BLUE -
OP
TIONAL L.E.D. LIGHT
HOT SOUP WELLS-2
WHT # 14

Related product manuals