EasyManua.ls Logo

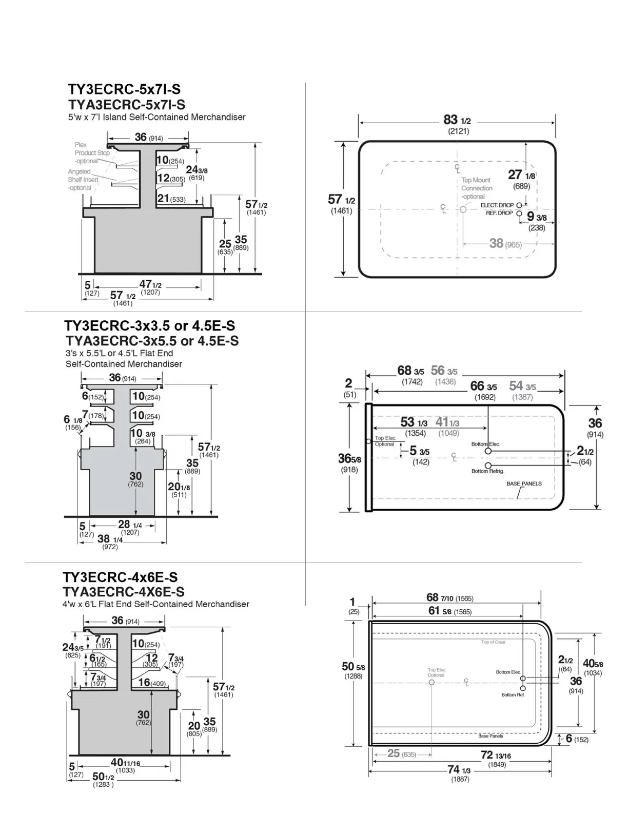
Hussmann TY3ECRC - Section and Plan Views

Hussmann TY3ECRC
26 pages
Print Icon
To Next Page IconTo Next Page
To Next Page IconTo Next Page
To Previous Page IconTo Previous Page
To Previous Page IconTo Previous Page
Loading...
Cut and Plan Views
7

Related product manuals