EasyManua.ls Logo

Hy-Security HTG 320-2 - Page 64

Hy-Security HTG 320-2
65 pages
Print Icon
To Next Page IconTo Next Page
To Next Page IconTo Next Page
To Previous Page IconTo Previous Page
To Previous Page IconTo Previous Page
Loading...
Installation and Maintenance Manual
58
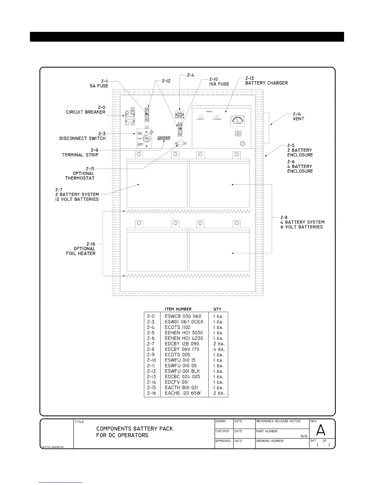
Parts Breakout – DC Power Supply
Battery Pack Components

Table of Contents

Related product manuals