EasyManua.ls Logo

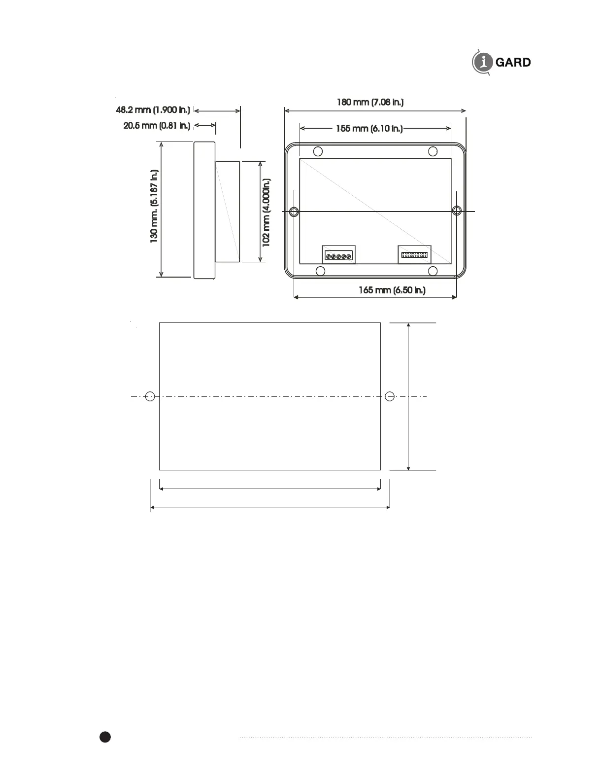
I-Gard IPC DSP OHMNI - Figure 15.2 DSP-DM Display Module with Cut-Out Detail

I-Gard IPC DSP OHMNI
40 pages
Print Icon
To Next Page IconTo Next Page
To Next Page IconTo Next Page
To Previous Page IconTo Previous Page
To Previous Page IconTo Previous Page
Loading...
I-GARD DSP-OHMNI Instruction Manual
34
4.25 (108mm)
6.50 (165mm)
Drill two holes A
No 36 TAP or
No 23 Clearance
6-32 Screw
A A
Figure 15.2 DSP-DM Display Module with cut-out detail

Table of Contents