EasyManua.ls Logo

IBM System/360 65 - 2365 PHYSICAL LAYOUT (S;N 30,000)

IBM System/360 65
85 pages
Print Icon
To Next Page IconTo Next Page
To Next Page IconTo Next Page
To Previous Page IconTo Previous Page
To Previous Page IconTo Previous Page
Loading...
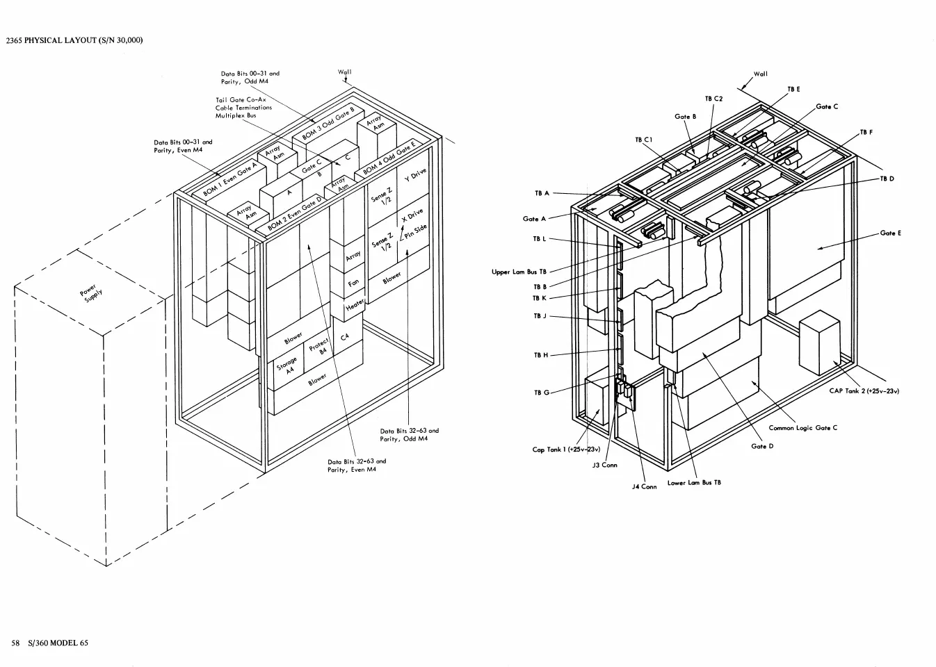
2365 PHYSICAL LAYOUT (SIN 30,000)
./
./
/
---
./
~
"-
"
/
~"
~
"qo..tl~\i
"-
"
S"
"
Doto Bits 00-31 and
Parity
I Even
M4
---
'"
I
I
~
./
>(
I
"
/
"
1/
I
I
I
I
I
I
l
I
I
I
I
J",'"
./
I
"-
I
/'
./
I
/'
~/'
58
S/360 MODEL 65
Dcta Bits 00-31 and
Parity,
Odd
M4
Tai
I
Gate
Co-Ax
Coble
Terminations
Multiplex
Bus
/
./
Wall
-(
Parity,
Even M4
Data
Bits
32-63
and
Parity,
Odd
M4
Gate
A
fBl
Upper lorn
Bus
TB
fB
B
fB
K
fBJ----~-+--~ll]
fB
H
fB
G
Wall
fB
E
fB
F
fB
0
Gate
E
J4
Conn

Related product manuals