EasyManua.ls Logo

Icom IC-M34

Icom IC-M34
30 pages
To Next Page IconTo Next Page
To Next Page IconTo Next Page
To Previous Page IconTo Previous Page
To Previous Page IconTo Previous Page
Loading...
12 - 1
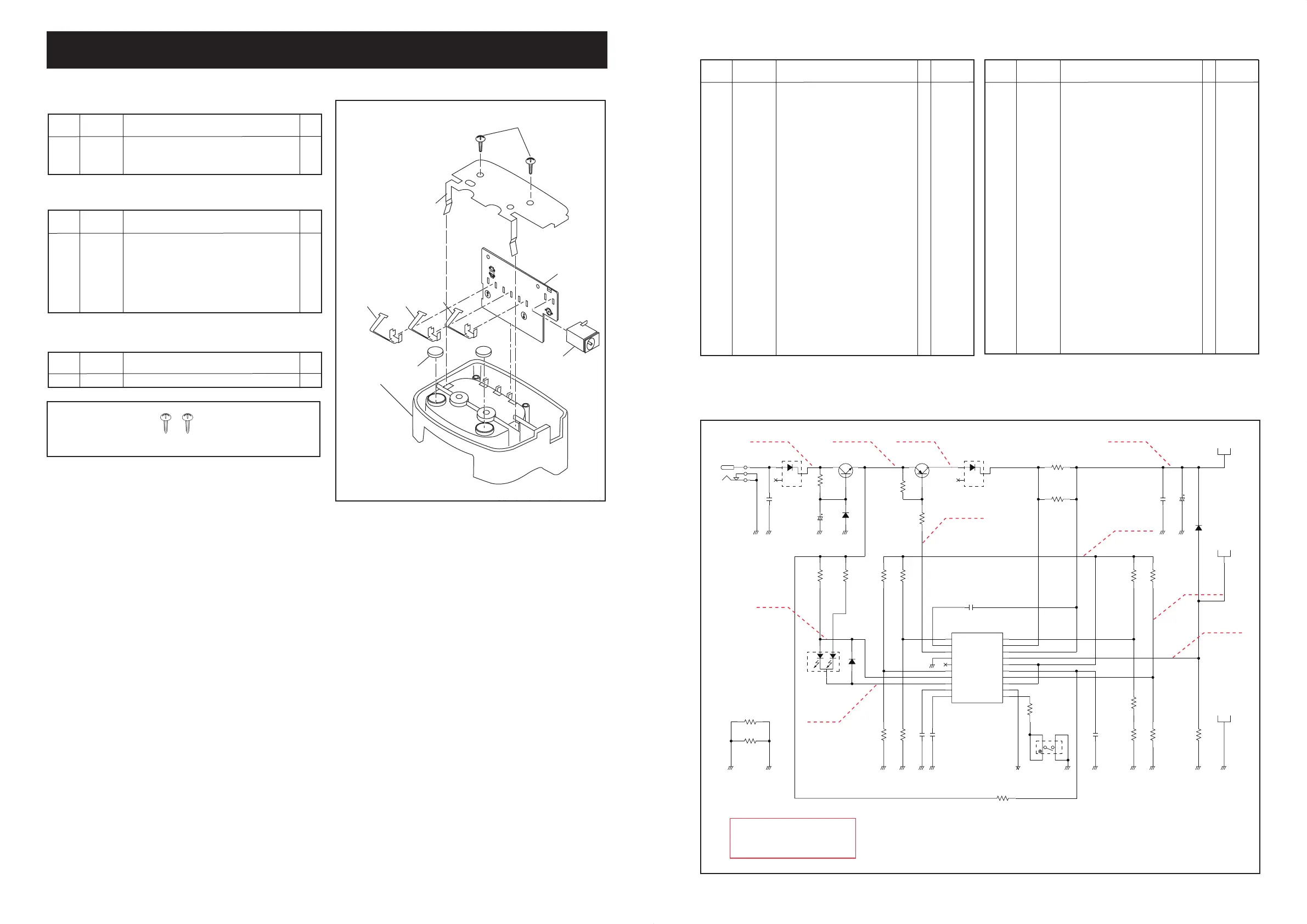
SECTION 12 BC-173
MP1(C)
(Vi i f h b id )
(C): CHASSIS PARTS
(M): MAIN UNIT
MP1(M) MP2(M)
MP3(M)
MAIN UNIT
MP3(C)
MP2(C)
MP4(C)×2
J1(M)
[CHASSIS PARTS]
REF ORDER
DESCRIPTION
QTY.
NO. NO.
MP1 8010020650 3002 CASE 1
MP2 8110009030 3002 COVER 1
MP3 8810008661 Screw BT B0 3X8 NI-ZC3 (BT) 2
MP4 8930039620 LEG CUSHION (A) 2
[MAIN UNIT]
REF ORDER
DESCRIPTION
QTY.
NO. NO.
J1 6510024940 HEC2305-016250 1
DS1 5040002740 RT3-03HRYG 1
S1 2230001190 SPPB512300 1
MP1 8930071290 3002 TERMINAL 1
MP2 8930071290 3002 TERMINAL 1
MP3 8930071290 3002 TERMINAL 1
[ACCESSORY]
REF ORDER
DESCRIPTION
QTY.
NO. NO.
MP1 8810001460 Screw BT A0 3.5X20 SUS 2
MP2
MP1
GR
DS1
R28
R2
MP3
R21
83R
IC1
1
P_CHG
2
NFB
3
CNT
4
GND
5
NC
6
F-CHG
7
LED-G
8
LED-R
9
C1
10
C2
11
CHG-SW
12
TL
13
TH
14
TDET
15
V+
16
VREF
17
VS
18
CS2
19
CS1
20
Q-CHG
3
3R
1Q
R46
5
3
R
6
R
2
Q
5D
6D
C9
1R3R
4R
7
R
8R9R
02R
72R
13R
4
3R
R44
J1
2C
5C
D1
D3
2D
01R11R
1C
3C
7C
8C
6C
1
S
BATT+
E:13.51V E:10.45V
F:10.52V F:8.34V
E:8.16V
F:8.34V
E:7.90V
F:FULL
*Tester:
Impedance is 50 k ohm or more
E:EMPTY
F:10.51V
E:8.26V
F:1.24V
E:1.24V
E:0.61V
F:0.61V
F:4.17V
E:3.79V
F:0.00V
E:1.77V
F:0.64V
E:0.00V
F:13.59V
M.=Mounted side (T: Mounted on the Top side, B: Mounted on the Bottom side)
S.=Surface mount
• MECHANICAL PARTS
• EXPLODED VIEW
• VOLTAGE DIAGRAM
[MAIN UNIT]
REF ORDER
DESCRIPTION
M.
H/V
NO. NO.
LOCATION
IC1 1190002270 S.IC NJW4100V-TE1 B 37.8/27.2
Q1 1540000550 S.TR 2SD1664 T100Q B 25/4.8
Q2 1520000460 S.TR 2SB1132 T100 R B 18.5/10.3
D1 1750001400 S.DIO RB461F-T106 B 13.4/6
D2 1730002710 S.ZEN UDZSTE-17 11B B 50.6/3.9
D3 1750001400 S.DIO RB461F-T106 B 20.9/28.8
D5 1750000550 S.DIO 1SS355 TE-17 B 12.1/12.8
D6 1750000550 S.DIO 1SS355 TE-17 B 48/25.3
R1 7030002110 S.RES MCR03EZHJ 470 (471) B 29/4.1
R2 7030000020 S.RES MCR10EZHJ 1 (010) B 21.7/23.1
R3 7030002220 S.RES MCR03EZHJ 3.3 k B 13.1/10.1
R4 7030002240 S.RES MCR03EZHJ 4.7 k B 13.1/8.7
R6 7030000500 S.RES MCR10EZHJ 10 k B 38.9/31.6
R7 7030002170 S.RES MCR03EZHJ 1.5 k B 36.5/32.1
R8 7030002280 S.RES MCR03EZHJ 10 k B 39.8/23
R9 7030002150 S.RES MCR03EZHJ 1 k B 39.6/21.6
R10 7030011720 S.RES MCR03EZPFX 10 k B 43.1/23.9
R11 7030011710 S.RES MCR03EZPD 1.8 k B 42.3/21.8
R20 7030002030 S.RES MCR03EZHJ 100 (101) B 46/23.7
R21 7030000010 S.RES MCR10EZHJ JPW (000) B 36.7/22.8
R27 7030002200 S.RES MCR03EZHJ 2.2 k B 20/14.4
R28 7030000020 S.RES MCR10EZHJ 1 (010) B 21.7/21.2
R31 7030002240 S.RES MCR03EZHJ 4.7 k B 22.1/11.1
R33 7030011190 S.RES ERA3YEB 103V (10 k) B 49.6/25.5
R34 7030002280 S.RES MCR03EZHJ 10 k B 42.8/28.9
R35 7030000500 S.RES MCR10EZHJ 10 k B 47.2/28.2
R38 7030000380 S.RES MCR10EZHJ 1 k B 47.2/30.5
R44 7030003970 S.RES MCR18EZHJ JPW B 51.3/30.6
R46 7030000010 S.RES MCR10EZHJ JPW (000) B 28.6/25.6
• ELECTRICAL PARTS
[MAIN UNIT]
REF ORDER
DESCRIPTION
M.
H/V
NO. NO.
LOCATION
C1 4030019190 S.CER B 12.4/3.1
C2 4510005240 ELE 16 ME 22 SWB
C3 4030019190 S.CER B 28.7/13.1
C5 4510005240 ELE 16 ME 22 SWB
C6 4030019200 S.CER B 49.6/28.8
C7 4030019190 S.CER B 33.9/32.1
C8 4030019210 S.CER B 35.2/32.1
C9 4030001100 S.CER GRM216B11H102KA01D B 30.7/26.4
J1 6510024940 CNR HEC2305-016250
DS1 5040002740 LED RT3-03HRYG <ROD>
S1 2230001190 SW SPPB512300
MP1
M34A3.indd16-17 12/27/20067:08:43PM

Other manuals for Icom IC-M34

Related product manuals