EasyManua.ls Logo

ICP PHF330000K00A1 - Wiring Diagrams; 2 to 3-1;2 Ton Wiring Diagram

ICP PHF330000K00A1
13 pages
Print Icon
To Next Page IconTo Next Page
To Next Page IconTo Next Page
To Previous Page IconTo Previous Page
To Previous Page IconTo Previous Page
Loading...
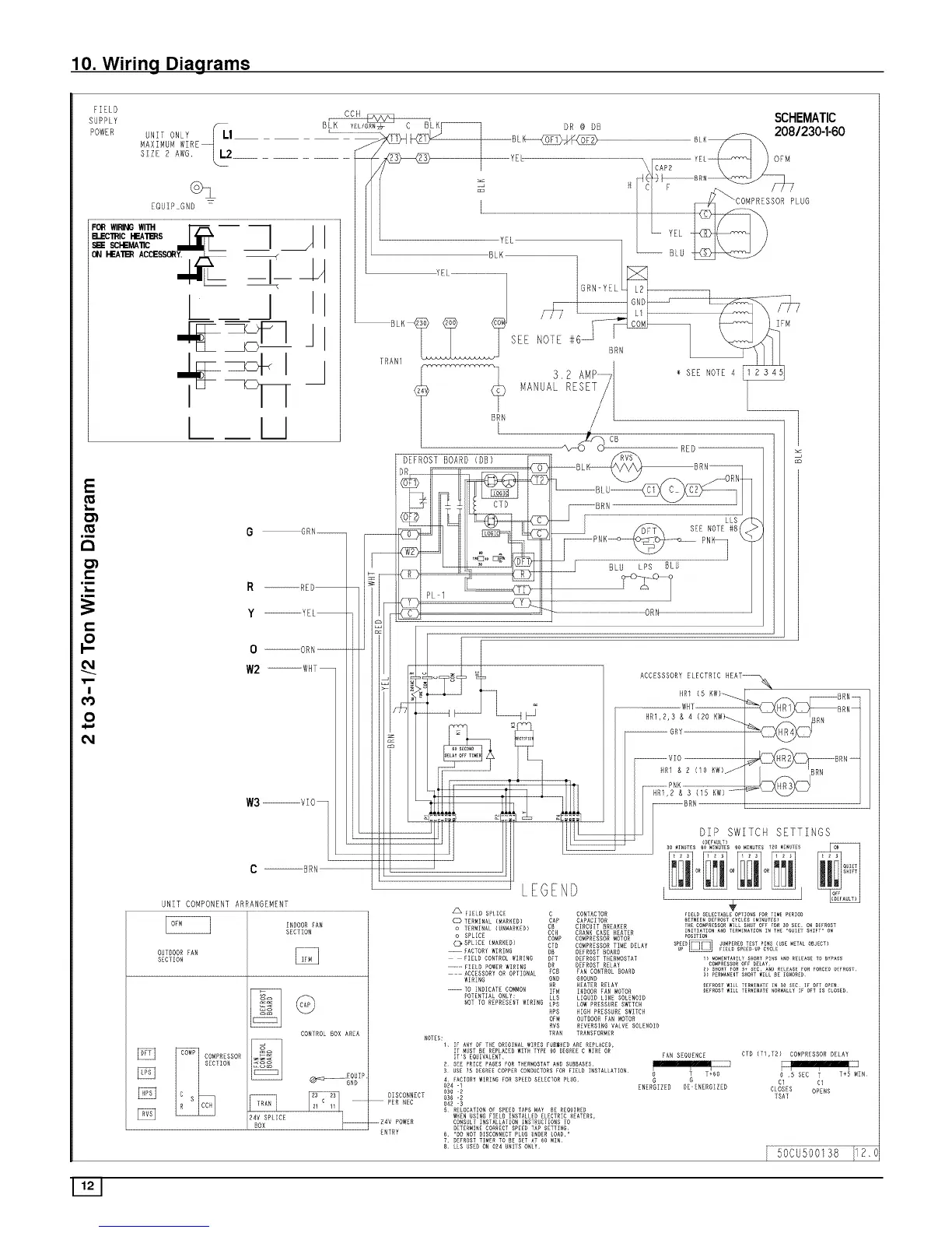
10. Wiring Diagrams
E
o_
t_
03
O=
.i
a
03
C
.i
!.--
FIELD
SUPPLY -- B[K
POWER ±
SIZE 2 AWG. _2
EQUIP GNt
FOR WIRINGWI'IH I--/--_ ] I I
E_:c'mmI.e.Kms I_ I / I
_ ._-'.1 L I _ I
ONHEA'IBRACCeSSO_[L ...............__ L_
l I
l 11
C
R
Y
0
w2
W3
UNIT COMPONENTARRANGEMENT
OUTDOOR FAN
SECTION
INDOOR FAN
SECTION
@
CONIROL BOX AREA
EQUIP,
--GND
I , "COMPRESSOR P UG
L ......
DE_ROS] BOARD (DB)
LS
SEE NOTE #8
BLU LPS 8LU
,T,,I
I
_)
O
PL 1
ACCESSSORY ELECTRIC
iRI (5
HR1,2,3 & 4 (20
HR1 & 2 (10 KW)
@!,2 & 5 (15
DISCONNECT
PER NED
--24V POWER
ENTRY
EGEND
F_E_D SPLICE _AP CONTACTOR
C>TERNINAL (_ARKED) CAPACITOR
o TERMINAL INK_ARKER) CB CIRCUIT BREAKER
o SPLICE CCN CRANK CASE HEATER
CONP CONPRESSOR NOTOR
{L> SPLICE (NANKED) CTD CONPREGSOR TINE DELAY
--FACTORY WIRING DB DEFROST BOARD
FIELD CONTROL WIRING DRT DEFROST THERMOSTAT
........... FIELD POWER WINING DR DEFROST RELAY
ACCESSORY OR OPIIONAL KCN FAN CONTROL BOARD
WIRING
OND GROUND
NR HEATER RELAY
--TO INDICATE CONNON IFM INDOOR FAN NOTOR
POTENTIAL ONLY:
LLS LIQUID LINE SOLENOID
NOT TO REPRESENT WINING LPS LOW PRESSURE SWITCH
NPS HIGH PRESSURE SWITCH
Of M OUTDOOR FAN MOTOR
RVS REVERSING VALVE SOLENOID
TRAN TRANSFORMER
NOTES:
l, IF ANY OF THE ORIGINAL _IRE$ FURTHER ARE REPLACED,
IT MUST SN RNPLANED WITN TYPE 90 DNGRNE C WIRE OR
!T'S EQUIVALENT,
2 SEN PRICE PAGES FOR TRERNOSTAT AND SURSASES
3 USE 75 DEGREE COPPER CONDUCTORS FOR FIELD INSTALLATION
O T T+GD
4, iACIORY WIRING FOR SPEED SELECTOR PLUG. O G
024 "1 ENERGIZED DEENERGIZND
o30 ]_
OKR
OKR K
7. DEFROST TIMER TO NR SET AT 60 KIN.
8, LLS NSED ON 024 UNIFS ONLY,
CTD (TI,T2} COMPRESSOR DELAY
CLOSES OPENS
ISA_

Related product manuals