EasyManua.ls Logo

IDEAL Classic LXRS 230

IDEAL Classic LXRS 230
32 pages
To Next Page IconTo Next Page
To Next Page IconTo Next Page
To Previous Page IconTo Previous Page
To Previous Page IconTo Previous Page
Loading...
6
Classic LX, RS - Installation
GENERAL
1
BOILER WATER CONNECTIONS
2
BOILER CLEARANCES
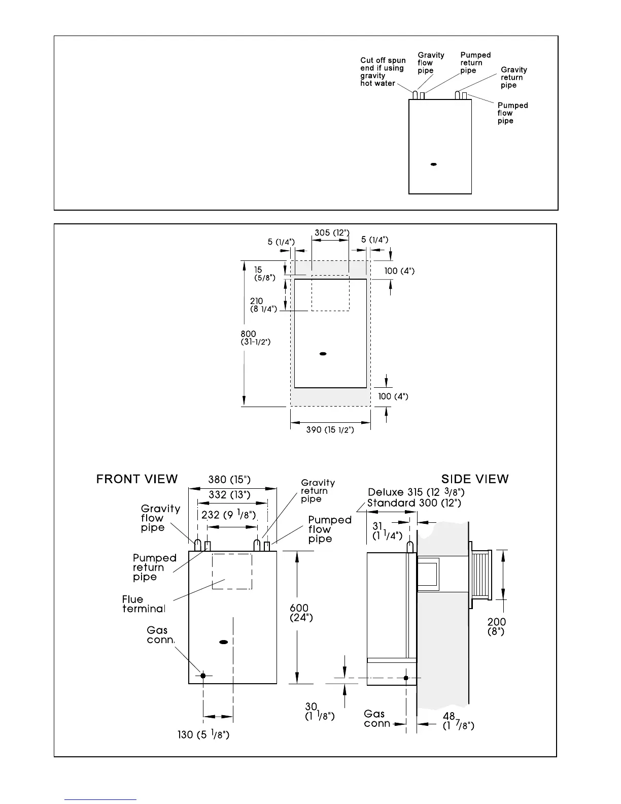
1. This appliance is NOT suitable for use in a direct hot water
system.
2. If the boiler is to be used on a sealed system, an Overheat
Thermostat Kit is available and must be installed in
accordance with the instructions supplied with the kit.
3. If the boiler is to be used for gravity domestic hot water
supply then cut off the spun ends of the gravity flow and
return pipes and fit a 22 mm to 28 mm copper connection
at the boiler gravity flow and return connections, in order to
run the gravity circuits in 28 mm pipe.
Front clearance: 450mm (17
3/4") from the front of the
boiler casing.
Minimum front clearance
when built in to cupboard is
75mm (3")
The following minimum clearances must
be maintained for operation and
servicing. Additional space will be
required for installation, depending upon
site conditions.
If using the Classic Sealed System
Unit (Standard models only) then refer
to the instructions packed with the unit
for the necessary clearances..

Related product manuals