EasyManua.ls Logo

Indramat TDA 1 - Page 25

Default Icon
50 pages
Print Icon
To Next Page IconTo Next Page
To Next Page IconTo Next Page
To Previous Page IconTo Previous Page
To Previous Page IconTo Previous Page
Loading...
25
DOK-DIAX01-TDA********-PRJ1-EN-E1,44 • 07.97
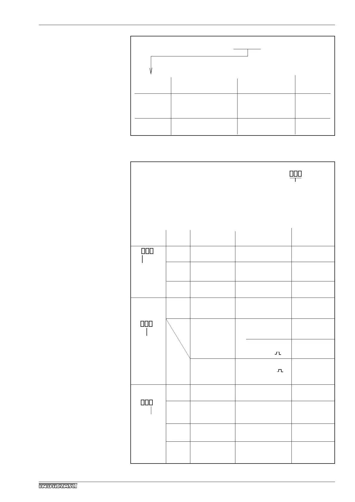
Type code: TDA 1- • • - • -
Standard Designation Connections Index
interface terminals code
Interface Control inputs, X2, 37-pin IKS 610
to NC signal and
analogue outputs
Interface Motor feedback X3, 15-pin IKS 315
for feedback connection
2. Control cabinet design
Type code: TDA 1- • • • - • - •
see Doc.
"Elec. connections of
main spindle drives"
Fig. 14. Assignment by index code of standard interfaces to connection diagram
Fig. 15: Assignment by index code of controller function options to the electrical
connections on the unit and to connection diagrams
Function options
Additional
encoder input
(type code
field 7)
X5
15-
pin
~
Function Coding
Designation
Connection Index
options terminals code
A analogue X4, 9-pin IKS 613
D digital X4, 25-pin IKS 612
16 bit parallel
L SERCOS interface X4, light-wave conductor IKO
without
O additional
encoder input
for high-resolution
INDRAMAT encoder (
) IKS 312
P with
additional
Y encoder input for incremental IKS 327
encoder ( )
... and
synchronisation X5a, 15-pin ( ) master spindle
input feedback
O none
D digital X6, 25-pin IKS 614
position
command value
I
incremental encoder
X6, 15-pin IKS 620
output
serial
S interface X6, 25-pin IKS 015
RS 232 C
Additional
interface
(type code
field 8)
Circuit diagram
see Doc.
"Elec. connections of
main spindle drives"
Speed
command
value input
(type code
field 6)