EasyManua.ls Logo

Ingersoll-Rand SSR M11 - Discharge Piping; Electrical Data and Connections

Ingersoll-Rand SSR M11
36 pages
Print Icon
To Next Page IconTo Next Page
To Next Page IconTo Next Page
To Previous Page IconTo Previous Page
To Previous Page IconTo Previous Page
Loading...
INSTALLATION / HANDLING
17
M4 M5,5 M7,5 M11
Revision 00
02/98
892100743
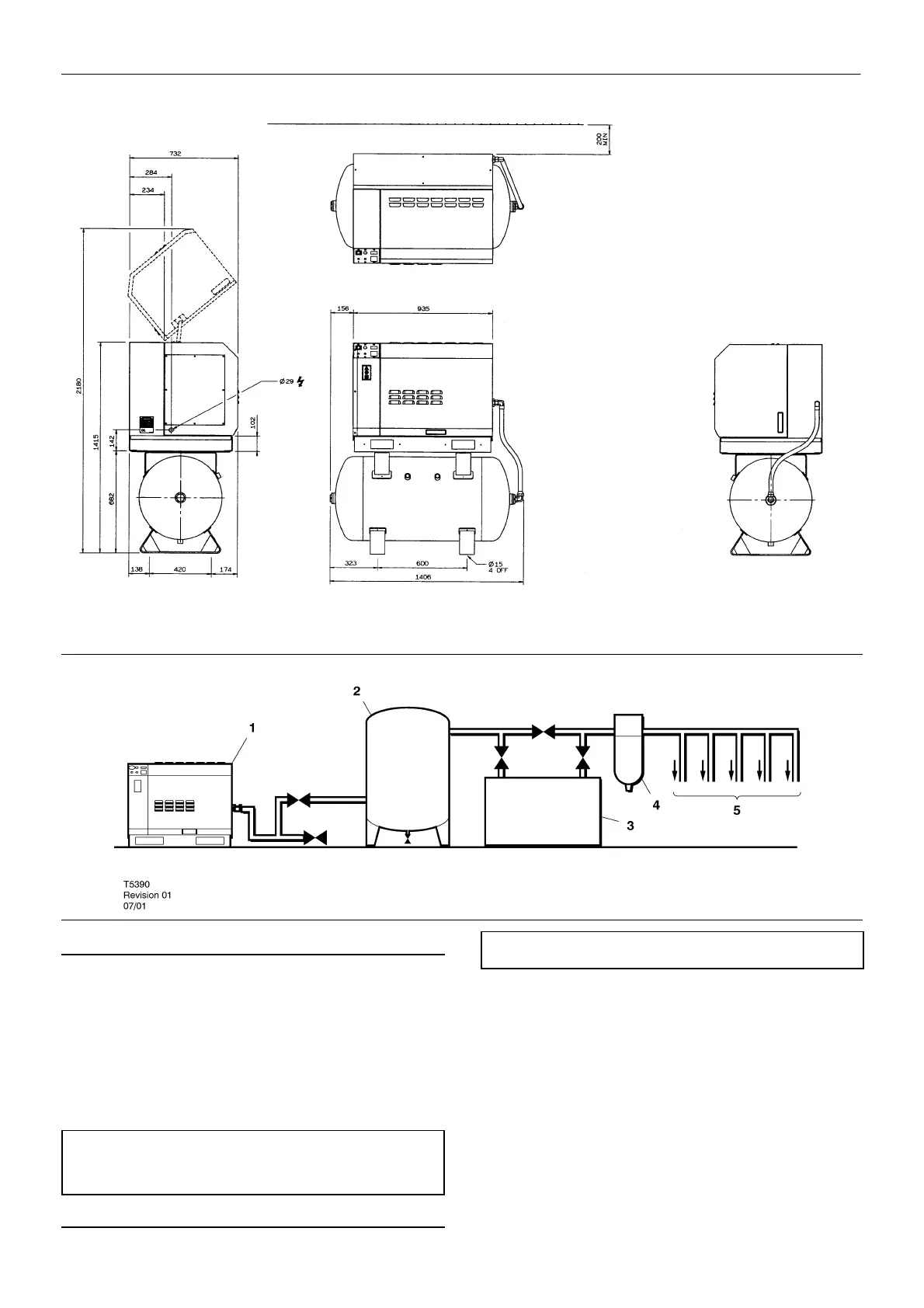
DISCHARGE PIPING
Discharge piping should be at least as large as the discharge
connection of the compressor. All piping and fittings should be suitably
rated for the discharge pressure.
It is essential when installing a new compressor [1], to review the
total air system. This is to ensure a safe and effective total system. One
item which should be considered is liquid carryover. Installation of air
dryers [3] is always good practice since properly selected and installed
they can reduce any liquid carryover to zero.
It is good practice to locate an isolation valve close to the
compressor and to install line filters [4].
NOTE
The machine is shipped with the automatic belt tension system
locked. remove the bolt which clamps the pivoted table to the main
chassis before running the compressor.
ELECTRICAL DATA
An independent electrical isolator should be installed adjacent to the
compressor.
CAUTION: Do not remove the motor table transit bolt until the electrical
connection and correct rotation have been completed.
Feeder cables should be sized by the customer/electrical
contractor to ensure that the circuit is balanced and not overloaded by
other electrical equipment. The length of wiring from a suitable
electrical feed point is critical as voltage drops may impair the
performance of the compressor. Cable sizes may vary considerably
so the mains terminals will accept up to 16mm
2
cable.
Feeder cable connections to studs L1L2L3 on isolator should be
tight and clean.
The applied voltage must be compatible with the motor and
compressor data plate ratings.
The control circuit transformer has different voltage tappings.
Ensure that these are set for the specific applied voltage prior to
starting.

Related product manuals