EasyManua.ls Logo

Integra DTR-40.3 - Bi-amping the Front Speakers; Bi-amping Explanation

Integra DTR-40.3
96 pages
Print Icon
To Next Page IconTo Next Page
To Next Page IconTo Next Page
To Previous Page IconTo Previous Page
To Previous Page IconTo Previous Page
Loading...
14
En
Using Dipole Speakers
You can use dipole speakers for the surround and surround back speakers. Dipole
speakers output the same sound in two directions.
Dipole speakers typically have an arrow printed on them to indicate how they should be
positioned. The surround dipole speakers (A) should be positioned so that their arrows
point toward the TV/screen, while the surround back dipole speakers (B) should be
positioned so that their arrows point toward each other, as shown.
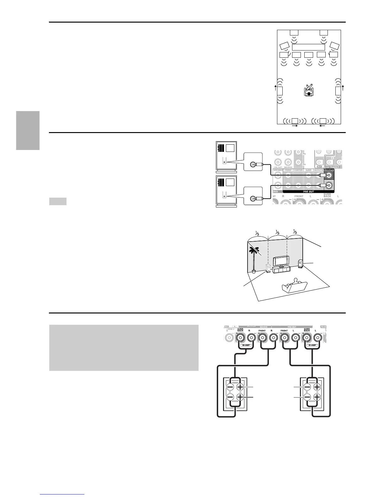
Using a Powered Subwoofer
To find the best position for your subwoofer, while playing a
movie or some music with good bass, experiment by placing
your subwoofer at various positions within the room, and
choose the one that provides the most satisfying results.
You can connect the powered subwoofer with two
SUBWOOFER PRE OUT jacks respectively.
The same signal is output from each jack.
Tip
If your subwoofer is unpowered and you’re using an external
amplifier, connect the subwoofer pre out jack to an input on the
amplifier.
Bi-amping the Front Speakers
Bi-amping provides improved bass and treble performance.
When bi-amping is used, the AV receiver is able to drive up
to a 5.1 speaker system in the main room.
Once you’ve completed the bi-amping connections as shown
and turned on the AV receiver, you must set the speaker
setting to enable bi-amping ( page 46).
Important:
When making the bi-amping connections, be sure to remove the
jumper bars that link the speakers’ tweeter (high) and woofer
(low) terminals.
Bi-amping can be used only with speakers that support bi-
amping. Refer to your speaker manual.
BB
AA
TV/screen
LINE INPUT
LINE INPUT
LINE INPUT
LINE INPUT
Powered subwoofer
Corner
position
1/3 of wall
position
Woofer (low)
Tweeter (high)
Front right
Front left

Table of Contents

Related product manuals