EasyManua.ls Logo

Integra DTR-8.4 - Connecting the DTR-8.4-Continued; Connecting the Power Cords of Other Components; Connecting the Power Cord

Integra DTR-8.4
130 pages
Print Icon
To Next Page IconTo Next Page
To Next Page IconTo Next Page
To Previous Page IconTo Previous Page
To Previous Page IconTo Previous Page
Loading...
DTR-8.4
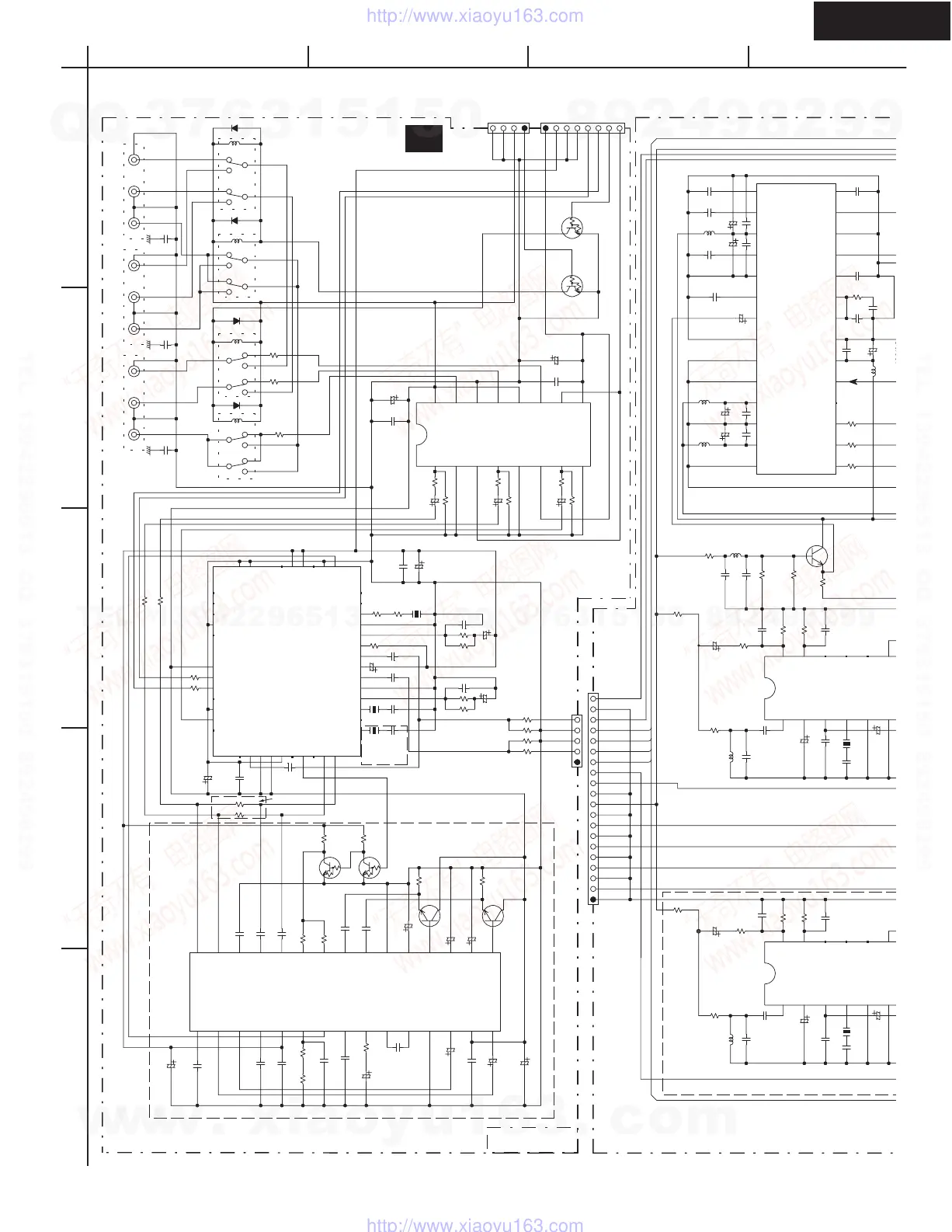
SCHEMATIC DIAGRAM 10 Component and S video sections
P2507B
R2840
10K
R2842
10K
R2835
1K
R2834
10K
R2837
1K
R2838
1K
R2839
1K
R2841
1K
R2836
1K
Q2822 TA8772AN
1
2
3
4
6
8
9
10
11
13
15 16
17
18
19
22
23
28
B-Y_IN 26
B-Y_OUT 29
GND 21
R-Y_IN 27
R-Y_OUT 30
SCP7SW124
SW2 25
VCC5
VDD14
VGG 20
VSS
12
P2855BP2705B
Q2825
RN1401
Q2826
RN1401
Q2804
RN1401
Q2803
RN1401
-VCC2
MUTE 2
VOUT3
DR
CTL
VOUT2
GND
VOUT1
+V CC
NFB3
VIN3+
-VCC1
NFB2
VIN2+
MUTE1
NF B1
VIN1+
Q2801
LA7106M
1
2
3
4
5
6
7
89
10
11
12
13
14
15
16
C2826
104J
C2832
223J
C2835
222J
C2766
104J
C2767
681J
C2829
104J
R-Y/Cr
B-Y/Cb
SECAM CONT
1HDL CONT
fs c
UV/CbCrS W
CVcc
DACVcc
YIN
DA C1
DAC2
YO UT
GND
DACTEST
SD A
SC L
Ys
R-Y1
B-Y1
Y1
II CG ND
R-Y2
B-Y2
Y2
SW GND
ADRS SW
R-Y/R
B-Y/ B
Y/G
SWVcc
SYNCVcc
CP
/HPI N
Di gGND
SCP
HDOUT
VD OUT
32 fH V CO
SYNCGND
AF C
SYNCOUT
CR OMA I N
SYNC IN
V-SEP
CGND
AP C
3.58
M- PAL
4.43
Q2821
TA1270BF
1
2
3
4
5
6
7
8
9
10
11
12
13
14
15
16
17
18
19
20
21
22
23
24
25
26
27
28
29
30
31
32
33
34
35
36
37
38
39
40
41
42
43
44
45
46
47
48
RL2803
RL2801
RL2802
RL2804
P2801
P2802
P2803
X2823
4.43MHZ
X2751
3.58MHZ
X2752
4.43MHZ
X2821
CSBLA503KE
CZF30
X2822
3.58MHZ
VIDEO
GND2 VCC2
GND1 C
XTAL APC2
APC1 4FSC
AC C BST
CROMA
Q2753 MM1093P
F
1
2
3
4
5
6
11
12
13
14
15
16
VIDEO
GND2 VCC2
GND1 C
XTAL APC2
APC1 4FSC
ACC BST
CROMA
Q2752 MM1093N
F
1
2
3
4
5
6
11
12
13
14
15
16
L2758
220K
L2741
220K
L2754
330K
L2753
101K
L2752
101K
L2751
101K
L2755
220K
VB1
COUT
VSS1
YOUT
VB2
PD
FIL
VSS4
VDD4
FSC
TESTOUT
MODE1
SDA
SCLTESTI3
VDD2
VSS3
VDD3
TESTI2
KILLER
TEST
YCIN
VRB
VSS2
TESTI1
VDD1
VRT
BIAS
Q2751
TC90A69F
1
2
3
4
5
6
7
8
9
10
11
12
13
14 15
16
17
18
19
20
21
22
23
24
25
26
27
28
P2853B
0
D2803
1SS352
D2801
1SS352
D2802
1SS352
D2804
1SS352
C2824
100/6.3
C2851
1/50
C2843
10/16
C2849
1/50
C2850
1/50
C2847
47/16
C2848
0.47/50
C2840
47/16
C2845
0.47/50
C2833
2.2/50
C2836
0.22/50
C2791
2.2/50
C2779
2.2/50
C2788
4.7/50
C2783
0.47/50
C2771
0.47/50
C2776
4.7/50
C2813
10/16
C2804
100/6.3
C2806
100/6.3
C2769
100/6 3
C2760
47/16
C2762
47/16
C2755
100/6.3
C2753
100/6.3
C2759
0.47/50
C2830
2.2/50
C2828
47/16
C2812
10/16
C2811
10/16
Q2823
2SC2712
Q2824
2SC2712
Q2742
2SC2712
Q2
7
2S
C
C
2
1
0
C2825
104Z
C2838
104Z
C2839
104Z
C2857
104Z
C2856
104Z
C2855
104Z
C2854
104Z
C2853
104Z
C2852
104Z
C2846
104Z
C2844
104Z
C2841
104Z
C2842
104Z
C2837
C2789
103Z
C2784
561J
C2785
391J
C2786
560J
C2742
120J
C2741
220J
C2772
561J
C2774
560J
C2773
391J
C2777
103Z
C2778
560J
C2775
103Z
C2787
103Z
C2790
560J
C2805
104Z
C2807
104Z
C2768
104Z
C2764
103Z
C2765
103Z
C2752
103Z
C2751
103Z
C2757
103Z
C2758
103Z
C2754
104Z
C2756
104Z
C2763
103Z
C2761
103Z
C2831
104Z
C2827
104Z
C2834
560J
C2801
104Z
C2802
104Z
C2803
104Z
R2773
R2768
0
R2771
R2850
0
R2822
100
R2823
100
R2849
0
R2816
75
R2815
75
R2814
75
R2844
0
R2843
0
R2848
150
R2847
150
R2846
150
R2845
150
R2825
10K
R2827
33K
R2826
3.3K
R2829
330K
R2828
33K
R2754
390
R2763
1M
R2764
15K
R2765
390
R2762
390
R2743
820
R2744
1.5K
R2757
390
R2755
1M
R2756
15K
R2746
820
R2745
3.3K
R2833
10K
R2832
10K
R2831
10K
R2751
1K
R2761
100
R2760
100
R2753
330
R2830
180
R2824
180
R2813
100
R2812
100
R2811
100
GND
GND
+5V
RS10
-5V
+9V
GND
GND
SCL
SDA
RS8
CPNONE
Y2
CB2
CR2
Y1
CB1
CR1
Y
CB
CR
+9V
YCSEPY
GND
YCSEPY
YCSEPC
GND
RS4
GND
RS5
YCSEPC
RS6
RS7
SW3
SW4
GND
YCSEP
GND
CSIGNAL
GND
YSIGNAL
GND
Z2
GND
V5
GND
NAVD-8070
COMPONENT OUT
COMPONENT2 IN
COMPONENT1 IN
U52
D model only
Except D model
TO NAAR-8078 (SCH.9)
TO NAETC-8073
TO NAETC-8073
Australi
a
Australian model only
A
1
2
3
4
5
BCD
37
w
w
w
.
x
i
a
o
y
u
1
6
3
.
c
o
m
Q
Q
3
7
6
3
1
5
1
5
0
9
9
2
8
9
4
2
9
8
T
E
L
1
3
9
4
2
2
9
6
5
1
3
9
9
2
8
9
4
2
9
8
0
5
1
5
1
3
6
7
3
Q
Q
TEL 13942296513 QQ 376315150 892498299
TEL 13942296513 QQ 376315150 892498299
http://www.xiaoyu163.com
http://www.xiaoyu163.com