EasyManua.ls Logo

Integra DTR-8.8 - To Nalan

Integra DTR-8.8
314 pages
Print Icon
To Next Page IconTo Next Page
To Next Page IconTo Next Page
To Previous Page IconTo Previous Page
To Previous Page IconTo Previous Page
Loading...
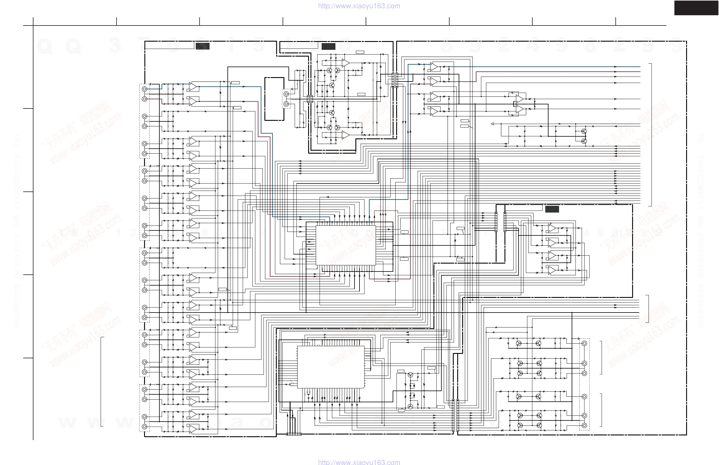
SCHEMATIC DIAGRAMS-1 (SD-1)
AUDIO SECTION-1
DTR-8.8
A
1
2
3
4
5
BCDEFGH
Z3MUTE
Z2MUTE
BTLR
BTLL
MainBR
MainBL
MainAR
SELSTB
SELSDO
SELCLK
TU_R
XM_R
XM_L
TU_L
XM_R
XM_L
PZ2R
PZ2L
Z2VOLCLK
Z2VOLSDO
-15V
MainAL
TUMUTE
-15VCD
MCH_SBR
MCH_SBL
MCH_SR
MCH_SL
MCH_SW
MCH_C
MCH_SR
MCH_SBL
MCH_SBR
MCH_SW
MCH_C
VIDEO5R
VIDEO5L
TAPEOUTL
TAPEOUTR
VIDEOOUTL
VIDEOOUTR
GND
SR_R
SR_L
+15V
+15V
GND
Z2R
Z2L
Z3R
Z3L
MCH_SL
SURROUND
SURROUND
BACK
FRONT
MULTI CH
INPUT
PHONO
L
ZONE 2 PRE OUT/LINE OUT
R
L
ZONE 3 PRE OUT/LINE OUT
R
TAPE
TAPE OUT
CD
AUX1
GAME/TV
DVD
CBL/SAT
VCR/DVR OUT
VCR/DVR IN
NAASP-9051
R4606
330
R4616
56K
R4607
330
R4617
56K
C4614
47/50
R4604
330
R4614
56K
R4624
220K
C4615
47/50
R4605
330
R4615
56K
R4625
220K
C4624
47/50
R4634
220K
C4625
47/50
R4635
220K
R4602
330
R4612
56K
R4622
220K
R4603
330
R4613
56K
R4623
220K
R4632
220K
R4633
220K
R4601
330
R4611
56K
R4621
220K
C4043
47/50
R4033
330
R4035
56K
R4073
220K
C4044
47/50
R4034
330
R4036
56K
R4074
220K
C4039
47/50
R4029
330
R4031
56K
R4069
220K
C4040
47/50
R4030
330
R4032
56K
R4070
220K
C4089
102J
C4088
102J
C4015
221J
C4016
221J
C4601
221J
C4602
221J
C4603
221J
C4604
221J
C4605
221J
C4606
221J
C4607
221J
C4019
47/50
R4037
220K
C4020
47/50
R4038
220K
C4023
47/50
R4009
330
R4011
56K
R4047
220K
C4024
47/50
R4010
330
R4012
56K
R4048
220K
C4005
221J
C4006
221J
C4087
102J
R4004
56K
R4006
330
R4041
10
R4045
220
R4042
10
R4046
220
C4003
221J
C4616
47/50
R4626
220K
C4617
47/50
R4627
220K
C4626
47/50
R4636
220K
C4627
47/50
R4637
220K
R4043
100
R4044
100
R4122
0
Q4026
R4161
10K
R4162
10K
R4164
220K
C4112
47/50
R4160
10K
C4111
47/50
R4163
220K
R4159
10K
R4007
220K
R4008
220K
R4126
220K
R4125
220K
R4005
330
R4003
56K
R4121
0
C4623
47/50
C4613
47/50
C4612
47/50
C4611
47/50
Q4025
R4257
220K
R4600
330
C4600
221J
C4610
47/50
R4620
220K
R4610
56K
C4017
221K
C4018
221K
C4001
221K
C4002
221K
Q4002B
NE5532
5
6
7
8
Q4002A
NE5532
2
3
4
1
Q4014B
NE5532
5
6
7
8
Q4014A
NE5532
2
3
4
1
Q4015B
NE5532
5
6
7
8
Q4015A
NE5532
2
3
4
1
Q4001B
NE5532
5
6
7
8
Q4001A
NE5532
2
3
4
1
Q4040B
NE5532
5
6
7
8
Q4040A
NE5532
2
3
4
1
Q4041B
NE5532
5
6
7
8
Q4041A
NE5532
2
3
4
1
Q4042B
NE5532
5
6
7
8
Q4042A
NE5532
2
3
4
1
Q4043B
NE5532
5
6
7
8
Q4043A
NE5532
2
3
4
1
R4158
220K
R4157
220K
C4108
47/50
C4107
47/50
R4156
220K
C4106
47/50
R4155
220K
C4105
47/50
R4154
220K
R4153
220K
C4104
47/50
C4103
47/50
C4102
47/50
R4151
220K
R4152
220K
C4101
47/50
Q4030B
NE5532AP
6
5
4
7
R4080
56K
R4079
56K
C4622
47/50
R4220
220
Q4206
RN1441
R4218
220K
Q4205
RN1441
R4219
220
Q4210
RN1441
C4219
47/50
C4220
47/50
R4221
100
R4222
100
R4224
10
Q4208
RN1441
R4223
10
Q4207
RN1441
R4236
10
Q4212
RN1441
R4234
100
R4235
10
Q4211
RN1441
R4233
100
R4226
220K
C4217
221J
R4225
220K
C4222
221J
R4238
220K
C4221
221J
R4237
220K
R4239
47
R4240
47
R4227
47
C4243
102J
R4232
220
R4231
220
R4230
220K
R4229
220K
R4228
47
R4217
220K
C4216
47/50
C4215
47/50
C4218
221J
Q4209
RN1441
R4258
220K
R4123
2.2K
R4124
2.2K
R4166
100
R4167
100K
R4168
100K
R4169
47K
R4171
100K
R4165
100
R4170
100
C4119
47/50
C4120
47/50
Q4031A
NE5532AP
3
2
1
8
Q4031B
NE5532AP
6
5
4
7
C4055
221K
C4056
221K
RN1441
RN1441
P4030A
9
8
7
C4081
100/50
C4083
100/50
C4085
100/50
C4094
100/50
C4027
47/50
R4019
56K
R4057
220K
C4028
47/50
R4018
330
R4020
56K
R4058
220K
C4009
221J
C4010
221J
Q4011A
NE5532
2
3
4
1
Q4011B
NE5532
5
6
7
8
R4017
330
C4031
47/50
R4021
330
R4023
56K
R4061
220K
C4032
47/50
R4022
330
R4024
56K
R4062
220K
C4011
221J
C4012
221J
Q4012A
NE5532
2
3
4
1
Q4012B
NE5532
5
6
7
8
C4035
47/50
R4025
330
R4027
56K
R4065
220K
C4036
47/50
R4026
330
R4028
56K
R4066
220K
C4013
221J
C4014
221J
Q4013B
NE5532
5
6
7
8
Q4013A
NE5532
2
3
4
1
R4015
220K
R4016
220K
R4051
10
R4053
100
R4052
10
R4054
100
C4007
221J
C4008
221J
R4056
220
R4055
220
R4014
47
R4013
47
C4090
102J
P4007
P4001
P4004P4005
R4001
330
R4002
330
P4008
P4033A
1
2
3
4
5
6
7
8
9
10
11
12
13
R4129
10K
R4130
10K
R4131
10K
R4115
22(1/2W)
R4116
22(1/2W)
R4118
22(1/2W)
R4119
22(1/2W)
R4120
22(1/2W)
R4128
22(1/2W)
R4127
22(1/2W)
P4006
P4003
Q4029
ANALOG SW ARRAY
TC94A46CFG
80
80 S04
79
79 NC
78
S03
77
NC
76
S02
75
NC
74
S01
73
NC
72
NC
71
S01
70
NC
69
S02
68
NC
67
S03
66
66 NC
65
65 S04
64
NC
63
S05
62
NC
61
S06
60
NC
59
S07
58
NC
57
S08
56
NC
55
S09
54
NC
53
S10
52
NC
51
S11
50
NC
49
S12
48
NC
47
S13
46
NC
45
S14
44
NC
43
COM1
42
NC
41
COM2
40
38 NC
39
39 COM3
38
40 NC
37
VDD
36
NC
35
CS2
34
STB
33
DATA
32
CK
31
GND
30
CS1
29
NC
28
VSS
27
27 NC
26
26 COM3
25
25 NC
24
COM2
23
NC
22
COM1
21
NC
20
S14
19
NC
18
S13
17
NC
16
S12
15
NC
14
S11
13
NC
12
S10
11
NC
10
S09
9
NC
8
S08
7
NC
6
S07
5
NC
4
S06
3
NC
2
S05
1
NC
R4117
22(1/2W)
P4032A
1
2
3
4
5
6
7
8
Q4030A
NE5532AP
3
2
1
8
Q4032A
NE5532AP
2
3
1
8
Q4032B
NE5532AP
5
6
4
7
P4030A
1
2
3
4
5
6
C4004
221J
R4176
220
C4176
152J
R4175
220
Q4018
2SC2240-BL
Q4017
2SC2240-BL
R4089
3.3K
Q4023B
NE5532
2
3
1
Q4023A
NE5532
5
6
4
7
8
R4084
22K
R4083
22K
R4090
3.3K
R4092
3.3K
C4060
47/50
C4059
47/50
R4087
2.7K
R4095
470K
R4097
820
R4091
3.3K
R4085
220K
R4088
2.7K
Q4022
2SC2712
R4096
470K
R4094
39K
R4098
820
R4086
220K
Q4021
2SC2712
D4002
UDZS5.6B
D4001
UDZS5.6B
R4133
220
R4134
220
R4135
220
R4136
220
C4065
182J
C4064
682J
C4066
182J
C4061
220/25
C4062
220/25
C4063
682J
R4099
820
C4067
22/50
R4102
220K
C4070
222J
C4080
220/25
R4100
820
C4068
22/50
C4069
222J
Q4019
2SC2240-BL
Q4020
2SC2240-BL
R4114
100(1/2W)
R4081
2.7K(1/2W)
R4082
2.7K(1/2W)
P4030B
7
8
9
P4030B
6
5
4
3
2
1
C4079
220/25
R4101
220K
C4057
47/50
C4058
47/50
Q4291
2SC2120
D4292
UDZS7.5B
D4291
UDZS7.5B
C4291
220/25
R4294
1.5K
R4293
1.5K
R4291
47(1/2W)
C4292
220/25
C4293
47/50
C4294
47/50
R4292
47(1/2W)
C4295
220/25
C4296
220/25
C4213
47/50
C4240
47/50
C4214
47/50
C4233
47/50
C4236
47/50
C4235
47/50
C4238
47/50
C4237
47/50
C4239
47/50
Q4292
2SA950
P4033B
1
2
3
4
5
-14.4V
6
7
8
9
10
11
12
13
R4256
10K
R4255
10K
Q4204
SELECTOR
VOL, TONE
R2S15211FP
40
MONO
39
SUBL
38
SUBR
37
ADCR
36
ADCL
35
FRIN2
34
FLIN2
33
SRIN2
32
SLIN2
31
SWIN2
30
CIN2
29
SBRIN2
28
SBLIN2
27
27 TRE_R
26 BASS_R2
25
25 BASS_R1
24
AVCC
23
TRE_L
22
BASS_L2
21
20
BASS_L1
FRC
19
FROUT
18
AGND
17
FLOUT
16
FLC
15
6-C
14
6-OUT
13
AGND
12
5-OUT
11
5-C
10
4-C
9
4-OUT
8
AGND
7
3-OUT
6
3-C
5
2-C
4
2-OUT
3
AGND
2
1-OUT
1
1-C
80
80 SBRIN1
79
79 SBLIN1
78
SRIN1
77
SLIN1
76
SWIN1
75
CIN1
74
FRIN1
73
FLIN1
72
RECL3
71
RECR3
70
INL11/RECL5
69
69 INR11/RECR5
68
68 INL10/RECL4
67
67 INR10/RECR4
66
66 INLB/RECL2
65
65 INRB/RECR2
64
INL9
63
INR9
62
INLA/RECL1
61
INRA/RECR1
60
INL8
59
INR8
58
INL7
57
INR7
56
INL6
55
INR6
54
INL5
53
INR5
52
INL4
51
INR4
50
INL3
49
INR3
48
INL2
47
INR2
46
INL1
45
INR1
44
AVEE
43
CLOCK
42
42 DATA
41
41 DGND
C4206
47/50
Q4202B
NE5532AP
6
5
4
7
Q4202A
NE5532AP
3
2
1
8
Q4201B
NE5532AP
6
5
4
7
Q4201A
NE5532AP
3
2
1
8
C4205
47/50
C4201
47/50
R4201
220K
C4202
47/50
R4202
220K
C4203
47/50
C4204
47/50
R4203
220K
R4204
220K
R4205
220K
R4206
220K
C4207
47/50
C4208
47/50
R4207
220K
R4208
220K
P4032B
8
7
6
5
4
3
2
1
R4078
1K
R4077
1K
C4175
152J
R4093
39K
R4179
1.2K
R4180
1.2K
C4091
221K
+6.9V
-6.9V
+14.4V
-14.4V
+14.4V
-14.4V
-14.4V
+14.4V
R4113
100(1/2W)
C4232
474J
R4254
1.8K
C4228
223J
C4230
823J
C4227
223J
C4229
823J
C4234
47/50
R4253
1.8K
C4231
474J
R4177
1K
C4177
221J
R4178
1K
C4178
221J
NAASP-9050(1/2)
U06
AMPLIFIER PC BOARD
U32
AMPLIFIER PC BOARD
U07
PHONO PC BOARD
NAASP-9080
L
R
L
R
L
R
L
R
L
R
L
R
L
R
L
R
L
R
CENTER
SUB WOOFER
L
R
L
R
L
R
L
R
TO NAASP-9050(2/2)
SD-2
TO NAASP-9050(2/2)
SD-2
TO NALAN-9121(SD-27:G2)
<Note>
SD-x:XY is short for Shcematic Diagram-x and
each socket's location, X=A to H, Y=1 to 5.
+14.4V
-14.4V
-14.4V
-14.0V
+14.4V
+14.4V
+14.0V
+7V
-7V
GNDNET
NET_L
GNDNET
NET_R
P202B
6
5
4
3
2
1
SW
SW
Q4213
RN1441
R4243
220
R4241
220K
Q4214
RN1441
R4244
220
C4224
47/50
R4242
220K
R4245
100
R4247
10
Q4215
RN1441
R4248
10
Q4216
RN1441
R4246
100
C4225
221J
R4249
220K
R4250
220K
C4226
221J
R4252
47
R4251
47
C4223
47/50
w
w
w
.
x
i
a
o
y
u
1
6
3
.
c
o
m
Q
Q
3
7
6
3
1
5
1
5
0
9
9
2
8
9
4
2
9
8
T
E
L
1
3
9
4
2
2
9
6
5
1
3
9
9
2
8
9
4
2
9
8
0
5
1
5
1
3
6
7
3
Q
Q
TEL 13942296513 QQ 376315150 892498299
TEL 13942296513 QQ 376315150 892498299
http://www.xiaoyu163.com
http://www.xiaoyu163.com

Other manuals for Integra DTR-8.8

Related product manuals