EasyManua.ls Logo

Intel H310 - Page 19

Intel H310
52 pages
Print Icon
To Next Page IconTo Next Page
To Next Page IconTo Next Page
To Previous Page IconTo Previous Page
To Previous Page IconTo Previous Page
Loading...
14
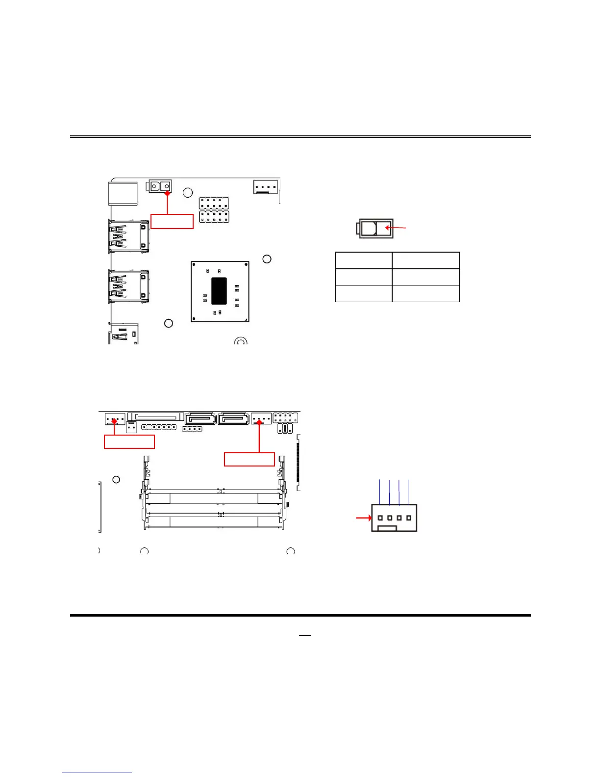
(2) ATX2P (2-pin block): Internal 19V power connector
Pin1
Pin No.
Definition
1
GND
2
+19V
(3) CPUFAN/SYSFAN (4-pin): Fan Connector
Fan Speed
GND
Pin1
+12V Fan Power
Control
ATX2P
CPUFAN
SYSFAN

Related product manuals