EasyManua.ls Logo

INVT GD20-0R7G-S2 - Page 80

INVT GD20-0R7G-S2
140 pages
To Next Page IconTo Next Page
To Next Page IconTo Next Page
To Previous Page IconTo Previous Page
To Previous Page IconTo Previous Page
Loading...
Goodrive20 inverters Function Parameters
79
Function
code
Name Detailed instruction of parameters
Default
value
Modify
P11.04
Overvoltage
stall voltage
protection
120~150%(standard bus voltage)(380V) 136%
120~150%(standard bus voltage)(220V) 120%
P11.05
Current limit
action
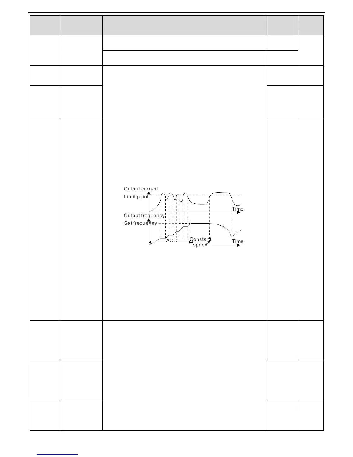
The actual increasing ratio is less than the ratio of output
frequency because of the big load during ACC running. It is
necessary to take measures to avoid overcurrent fault and
the inverter trips.
During the running of the inverter, this function will detect
the output current and compare it with the limit level defined
in P11.06. If it exceeds the level, the inverter will run at
stable frequency in ACC running, or the inverter will derate
to run during the constant running. If it exceeds the level
continuously, the output frequency will keep on decreasing
to the lower limit. If the output current is detected to be lower
than the limit level, the inverter will accelerate to run.
Setting range of P11.05:
0:current limit invalid
1:current limit valid
2:current limit is invalid during constant speed
Setting range of P11.05:0x00~0x12
Setting range of P11.06:50.0~200.0%
Setting range of P11.07:0.00~50.00Hz/s
0x01
P11.06
Automatic
current limit
level
G:
160.0%
P11.07
The decreasing
ratio during
current limit
10.00
Hz/s
P11.08
Overload
pre-alarm of
the motor/
inverter
The output current of the inverter or the motor is above
P11.09 and the lasting time is beyond P11.10, overload
pre-alarm will be output.
0x000
P11.09
Overload
pre-alarm test
level
150%
P11.10
Overload
pre-alarm
detection time
1.0s

Table of Contents

Related product manuals