EasyManua.ls Logo

ITRON RR 16 - Page 54

ITRON RR 16
64 pages
Go to English
Print Icon
To Next Page IconTo Next Page
To Next Page IconTo Next Page
To Previous Page IconTo Previous Page
To Previous Page IconTo Previous Page
Loading...
54
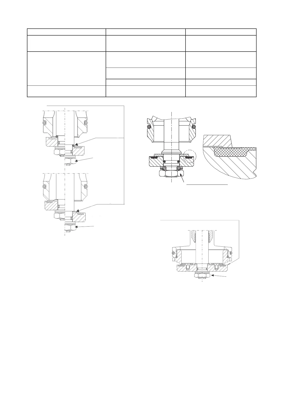
Спрямляющий диск для расходов < 10% от qмакс (< 1:10)
Осторожно
Для сопел ø 24 / ø 31 / ø 42 вместо кольца кру-
глого сечения или компенсационного диска
зажимается спрямляющий диск между та-
рельчатым затвором клапана и буртиком к
штоку вентиля.
Удалить кольцо круглого сечения (уплотне-
ние тарельчатого затвора) перед монтажом
спрямляющего диска, а затем опять монти-
ровать его.
Для сопел ø 54 & ø 82 используется тарельча-
тый затвор клапана ТМ со спрямляющим дис-
ком. Компенсационный диск не удаляется.
Стандартное исполнение с
Исполнение с тарельчатым затвором
клапана ТМ со спрямляющим диском для
сопел Ø54 & Ø82
Исполнение со спрямляющим диском
для сопел Ø24 / Ø31 / Ø42
кольцом
круглого
сечения
соплом Ø24
S 17
компенсационным
диском
(соплами Ø31,
Ø42 и Ø54)
S 17
S 17;
S 19 (DN 80)
Монтаж спрямляющего диска
Удалить контрольную плиту с корпуса исполнительного звена (поз. № 8 в перечне материалов).
Ослабить гайку S 17 или S 19 с шестигранной головкой, при этом стопорить по противному кон-
цу с помощью отвертки в шлице резьбовой шейки. Снять тарельчатый затвор клапана, шайбу и
стопорную зубчатую шайбу.
Удалить кольцо круглого сечения или компенсационный диск; вместо него вставить спрямляю-
щий диск
(соблюдайте правильное положение!) Насадить тарельчатый затвор клапана, шайбу
и стопорную зубчатую шайбу.
Затянуть гайку с шестигранной головкой (макс. момент 5 Нм), стопорить по противному концу с
помощью отвертки (размер лезвия 8 x 1,2 или 9 x 1,4 мм).
Прикрепить контрольную плиту опять к корпусу исполнительного звена, проверить герметич-
ность.
Ду 25 Ду 50 Ду 80
Конструктивное исполнение до
апреля 1998 г.
111-163-10 сопла ø 24
Конструктивное исполнение до
апреля 1998 г.
111-163-10 Сопла ø 24
Тарельчатый затвор клапана ТМ
111-360-20
сопла ø 54
Конструктивное исполнение с мая
1998 г. (берма на нижней стороне)
111-363-10 сопла ø 24
Конструктивное исполнение с мая
1998 г. (берма на нижней стороне)
111-363-10 сопла ø 24
111-363-15 для сопел ø 42
111-163-15 для сопел ø 31
Тарельчатый затвор клапана ТМ
111-560-20 сопла ø 82
111-363-15 для сопел ø 42
111-163-15 сопла ø 31
Тарельчатый затвор клапана ТМ
111-360-20 сопла ø 54
Осторожно: Соблю-
дайте правильное положе-
ние спрямляющего диска
S 17

Table of Contents

Related product manuals