EasyManua.ls Logo

JETWAY NP591 - Page 24

JETWAY NP591
44 pages
Print Icon
To Next Page IconTo Next Page
To Next Page IconTo Next Page
To Previous Page IconTo Previous Page
To Previous Page IconTo Previous Page
Loading...
19
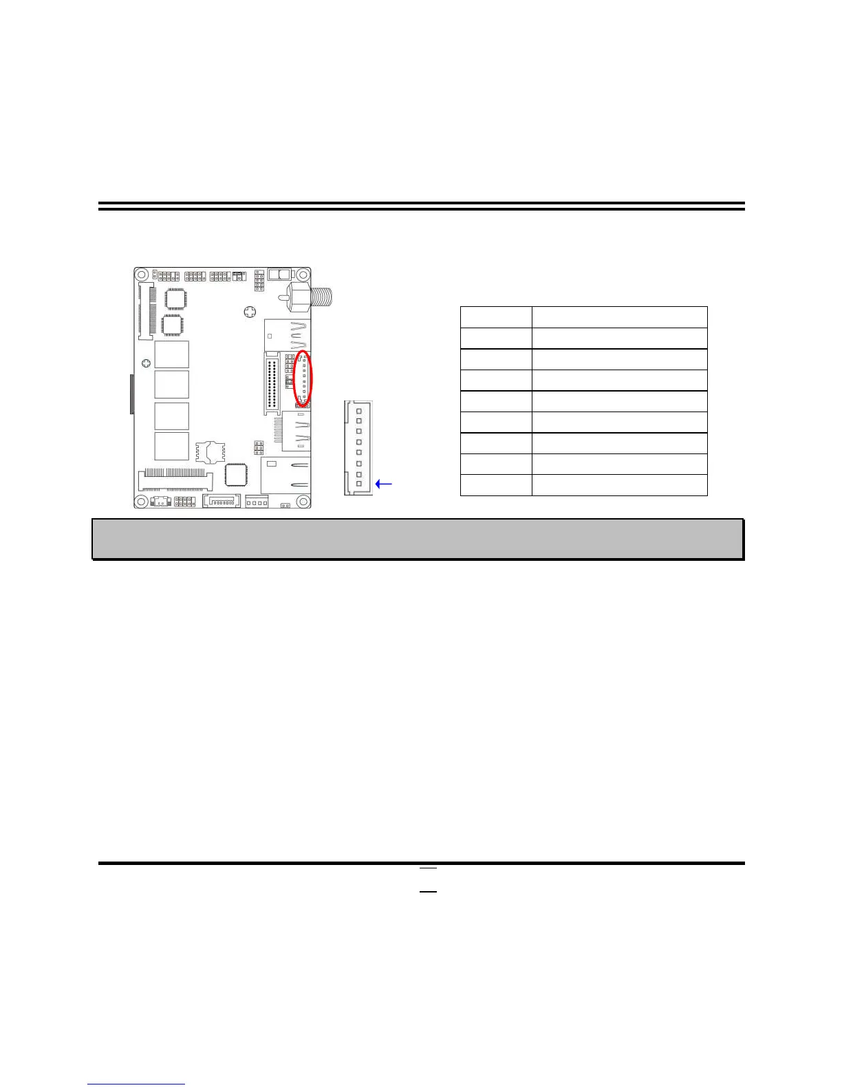
(7) INVERTER (8-pin): LVDS Inverter Header
Pin 1
Pin No. Definition
1 Backlight Enable
2 Backlight PWM
3 VLED
4 VLED
5 GND
6 GND
7 Backlight Up SW
8 Backlight Down SW
Warning! Find Pin-1 location of the inverter and make sure that the installation direction is correct!
Otherwise serious harm will occur to the board/display panel!!

Related product manuals