EasyManua.ls Logo

Johnson Controls VFD66 Drive - Rating Data; Supply Types and Imbalance; Maximum Motor Cable Length; Multi-motor Capability

Johnson Controls VFD66 Drive
40 pages
Print Icon
To Next Page IconTo Next Page
To Next Page IconTo Next Page
To Previous Page IconTo Previous Page
To Previous Page IconTo Previous Page
Loading...
VFD66 User Guide 9
Issue Number: 2 www.johnsoncontrols.com
Safety
information
Rating data
Mechanical
installation
Electrical
installation
De-rating
Keypad and
display
Parameters Diagnostics
Technical
specifications
UL Listing
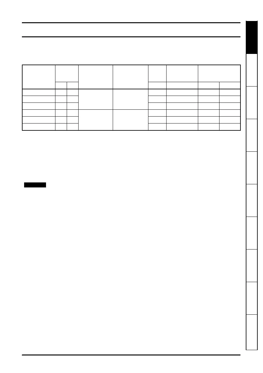
2Rating data
The following information describes the electrical and mechanical ratings for the range
of Johnson Controls drives.
Table 2-1 VFD66 model numbers and ratings
*With fan
Overload capacity
110% of output current for 1 minute.
Output frequency
0 to 1500Hz
Output voltage
3 phase, 0 to drive rating (240 or 480Vac maximum set by Pr 08).
2.1 Supply types
The drive is suitable for use on:
Star and Delta connected supplies
Three phase supplies with a grounded star point neutral configuration.
Three phase supplies with a line grounded delta configuration.
Ground supplies
Supplies with ground configurations TN, TN-C, and TN-S.
Floating supplies
IT supply configurations
2.2 Supply imbalance
The maximum supply imbalance: 2% negative phase sequence as per IEC 60146-1-1.
2.3 Maximum motor cable length
50m (165 ft) maximum from the motor.
2.4 Multi-motor capability
The VFD66 drive is capable of operating multiple motors at a common frequency as
long as the total current is less than or equal to the drive rating. Individual motor
protection must be provided and the output of the drive should be chain connected to
the motors. The fixed V/F mode (Pr 41 = Fd) should be used.
Model
Number
Motor
power
Supply voltage
and frequency
Output voltage
and frequency
Input
fuse
rating
Typical RMS
input
current
Rated RMS output
current (A)
kW hp A A 50°C60°C
VFD66AAA-2 0.75 1.0
3 phase 200 to
240Vac
±10%
48 to 65Hz
Three phase
0 to 240Vac
0 to 1500Hz
10 6.3 4.0 4.0
VFD66CAA-2 1.5 2.0 13 9.9 7.5 6.2
VFD66EBA-2* 2.2 3.0 16 13.1 10.6 9.0
VFD66BAA-2 0.75 1.0
3 phase 380 to
480Vac
±10%
48 to 65Hz
Three phase
0 to 480Vac
0 to 1500Hz
63.51.81.8
VFD66DAA-2 1.5 2.0 8 5.7 3.6 3.6
VFD66FAA-2 2.2 3.0 10 7.5 5.5 5.5
The output frequency can be increased by 20% during deceleration.
NOTE

Related product manuals