EasyManua.ls Logo

Johnston VT502 - Page 133

Default Icon
220 pages
Print Icon
To Next Page IconTo Next Page
To Next Page IconTo Next Page
To Previous Page IconTo Previous Page
To Previous Page IconTo Previous Page
Loading...
MA4:17
V Range 502 l 652 l 802 Maintenance Manual
Johnston Sweepers Limited
Chapter - Water System
1
F
E
D
2
1
C
B
A
2
YB DESAEL ER
R E BMUN T N EMU CO D
SECNARE LOT L ARENEG
34
Y T I L A U Q G N I D L EW
T C UDORP
TCE JORP
SECNARELOT GI DL EW
56
TNEMTRAPED E L B I SNOPSEREP Y T COD
TSR I F
E L GNA
E L T I T YRA TNEME L PPUS / E L T I T
YB DETAERC
NO I S R E V
7
T EEHSE L ACS
ET AD
3A
NO I S I V ER
E T AD
NCE
F
E
D
3 4567
C
B
8
A
NO I T AMRO F N I NO I S I V E R
8309107 E207817
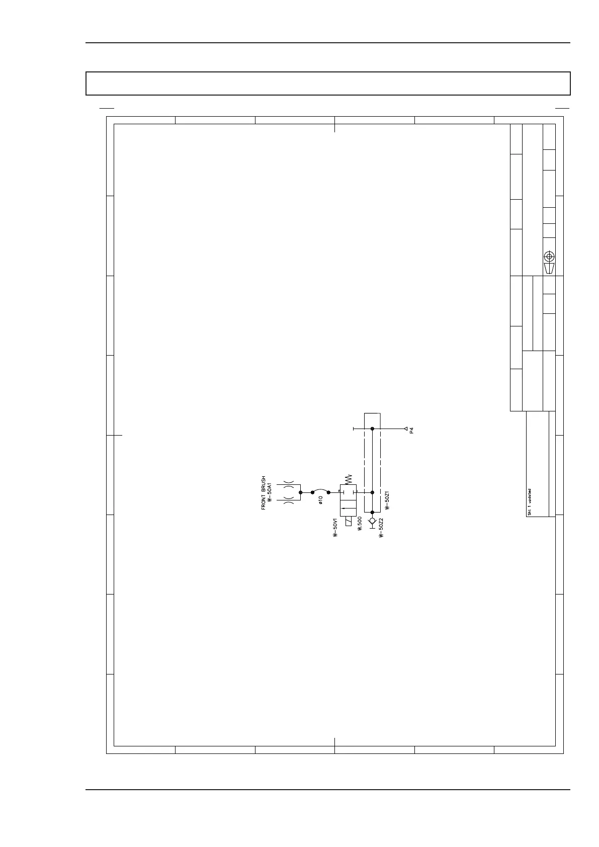
sma r g a i D t i u c r i C me t s y S r e t aW
egnaR V
DLOFPU
8102 . 01 . 52
SGN
me t y s l l o r t n o K
D-CDCA501:18 / 5
Low Pressure Water System - Sheet 5/8 Rev E

Related product manuals