EasyManua.ls Logo

Johnston VT502 - Page 25

Default Icon
220 pages
Print Icon
To Next Page IconTo Next Page
To Next Page IconTo Next Page
To Previous Page IconTo Previous Page
To Previous Page IconTo Previous Page
Loading...
MA2:5
V Range 502 l 652 l 802 Maintenance Manual
Johnston Sweepers Limited
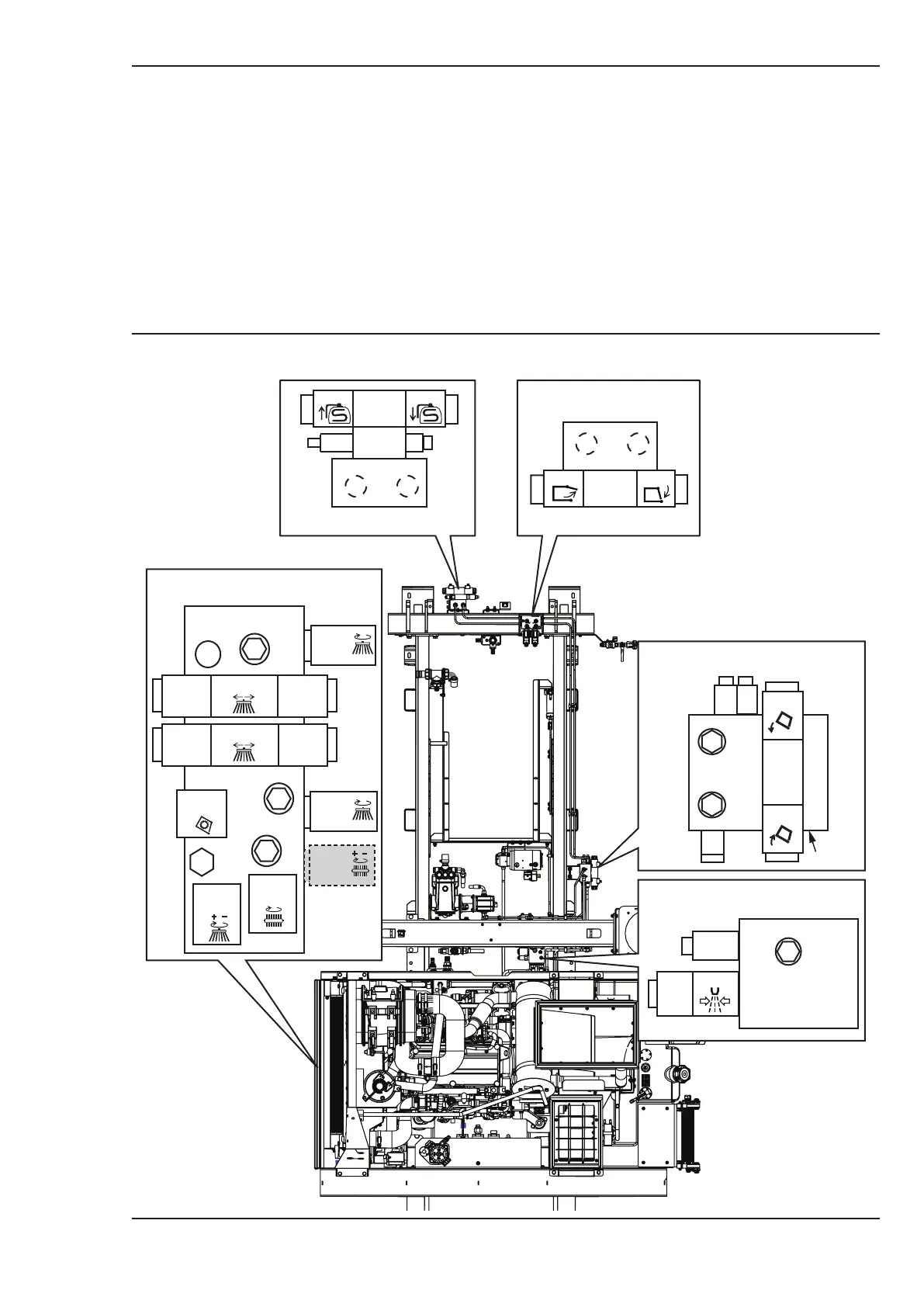
Chapter - Hydraulic System
When the hydraulic system is first commissioned, or after changing a hydraulic hose on the hydraulic
pumps on the body discharge circuit, it is necessary to purge any air from the system.
Firstly operate the electric discharge pump to open the rear door.
Then start the auxiliary engine on VT units, or engage the hydrodrive gearbox on VS units, and open
and close the rear door three times to ensure all air is purged from the system.
Failure to carry out this procedure may cause the rear door locks to function incorrectly.
VALVE IDENTIFICATION
H-8Z2
BODY TIP BLOCK
(Attached to Sub-frame)
H-9V1
Y. 011
H-8V3
H-9V2
H-8V2
H-8V1
H-8Z1
Y. 012
H-8Z2
Y.022
H-4V1
H-4Z2
H-4V2
SUPAWASH/FRONT BRUSH BLOCK
(Located adjsent to Powapack)
Y. 016
H-11V1
H-10V1
Y. 015
Y. 013 Y. 014
H-10Z1
Rear Door Block
(Attached to sub-frame under body)
Y. 006
Y. 008
Y. 007
Y. 009
H-6V1
H-5V1
H-2V3
Y. 002
H-2V4
Y. 003
H-7V1
Y. 010
H-2V1
Y. 001
TS
TP
H-4V2
H-1Z2
H-2V2
H-3V2
H-0S3
S.003
H-1Z1
IN OUT
IN OUT
H-3V1
Y. 004
H-4V1
Y. 005
SWEEP BLOCK
(Located in Systems Locker)
REAR DOOR OPEN/CLOSEREAR DOOR WANDER HOSE
Y013
Y012
H-2Z3
H-2V6
AB
Y062
Y061
H-5V1
H-5Z2
H-5V2
H-5Z1
BA
Y011Y010
H-9V1
H-8V3
H-9V2
H-8V2
H-8V1
H-8Z1
H-8Z2
H-2V10
H-2V11
BODY RAISE/LOWER
HOOD LOWER
HOOD RAISE
Y023
Y021
B
A
M02MA-054
HYDRAULIC SYSTEM - INITIAL OPERATION

Related product manuals