EasyManua.ls Logo

JUKI MO-6804D - Disegno del Tavolo

JUKI MO-6804D
Print Icon
To Next Page IconTo Next Page
To Next Page IconTo Next Page
To Previous Page IconTo Previous Page
To Previous Page IconTo Previous Page
Loading...
– 27 –
1200
断面
断面
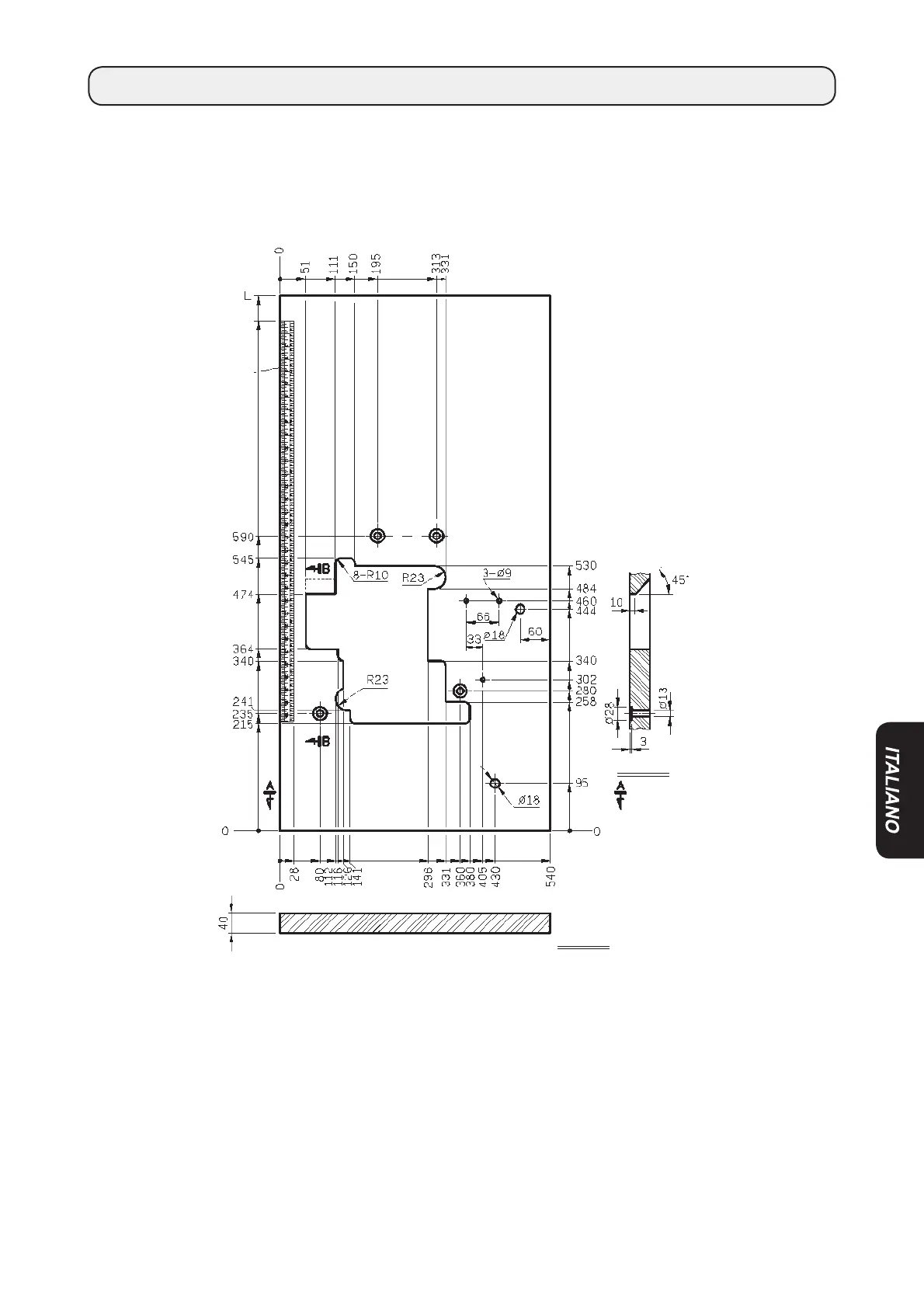
20. DISEGNO DEL TAVOLO
B-B
A-A
UNITÀ: mm
T
OLLERANZA: ± 2
Scala graduata nera

Table of Contents

Related product manuals