EasyManua.ls Logo

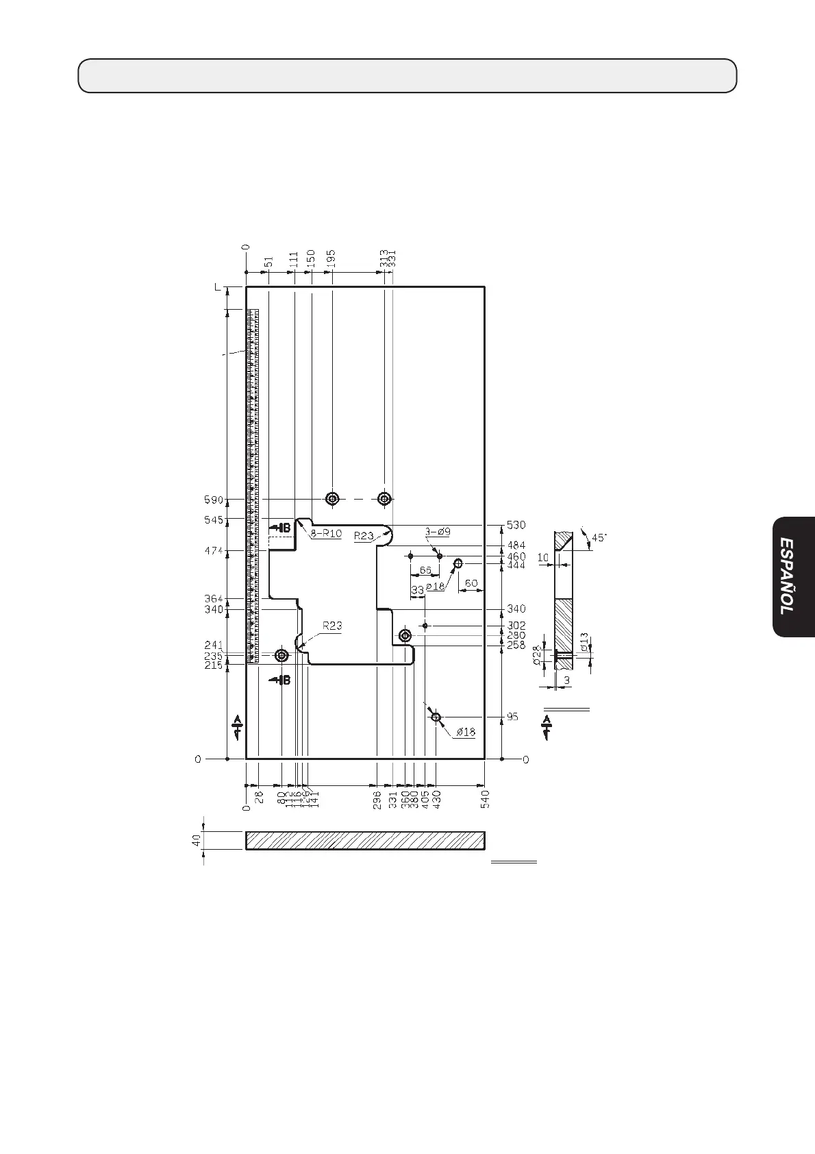
JUKI MO-6804D - Dibujo de la Mesa

JUKI MO-6804D
Print Icon
To Next Page IconTo Next Page
To Next Page IconTo Next Page
To Previous Page IconTo Previous Page
To Previous Page IconTo Previous Page
Loading...
– 27 –
1200
UNIDAD: mm
DIFERENCIA: ±2
Línea demarcadora
de escala negra
20. DIBUJO DE LA MESA
B-B
A-A

Table of Contents

Related product manuals