EasyManua.ls Logo

Kenwood KDC-B7021 - Connecting Cables to Terminals

Kenwood KDC-B7021
40 pages
Print Icon
To Next Page IconTo Next Page
To Next Page IconTo Next Page
To Previous Page IconTo Previous Page
To Previous Page IconTo Previous Page
Loading...
— 31
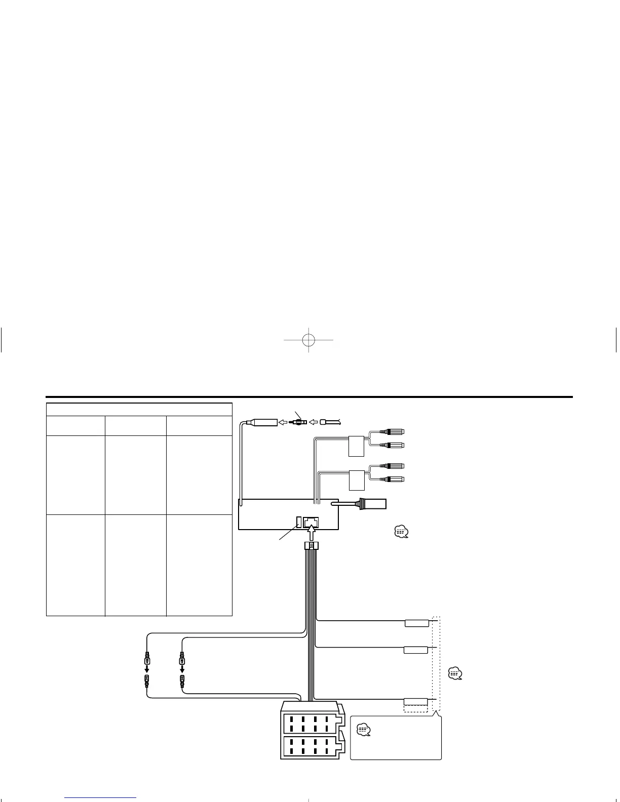
TEL MUTE
EXT.CONT.
P.CONT.OUT
ANT.CONT.
1
2
3
4
5
6
7
8
1
2
3
4
5
6
7
8
REAR
FRONT
Front left output (White) 14
Front right output (Red) 13
Rear right output (Red) 11
Rear left output (White) 12
Connector Function Guide
Pin Numbers for
ISO Connectors
Cable Colour Functions
External Power
Connector
A–4
A–5
A–6
A–7
A–8
Speaker
Connector
B–1
B–2
B–3
B–4
B–5
B–6
B–7
B–8
Yellow
Blue/White
Orange/White
Red
Black
Purple
Purple/Black
Gray
Gray/Black
White
White/Black
Green
Green/Black
Battery
Power Control
Dimmer
Ignition (ACC)
Earth (Ground)
Connection
Rear Right (+)
Rear Right ()
Front Right (+)
Front Right ()
Front Left (+)
Front Left ()
Rear Left (+)
Rear Left ()
Battery wire (Yellow) 6
Ignition wire (Red) 7
FM/AM
antenna input
2
Antenna Cord (ISO) 3
Antenna Conversion Adaptor (ISO–JASO) (Accessory3) 1
Wiring harness
(Accessory1)
5
Connect to the terminal that is
grounded when either the telephone
rings or during conversation. 24
Power control/ Motor antenna
control wire (Blue/White) 22
Connect either to the power control
terminal when using the optional
power amplifier, or to the antenna
control terminal in the vehicle. 26
A–7 Pin (Red) 8
A–4 Pin (Yellow) 9
Connector B
Fuse(10A)
4
Connector A
TEL mute wire (Brown) 21
To connect the KENWOOD
navigation system, consult your
navigation manual. 25
External amplifier
control wire
(Pink / Black)20
To "EXT.AMP.CONT." terminal of the
amplifier having the external amp
control function. 23
To KENWOOD disc changer/
DAB control input/
KPA-SD100/KPA-HD100/KPA-SS100 16
To connect these leads, refer
to the relevant instruction
manuals. 17
Connecting Cables to Terminals
If no connections
are made, do not
let the cable come
out from the tab. 27
KDC-7021SE_U.S 03.1.17 2:57 PM Page 31

Table of Contents