EasyManua.ls Logo

Kenwood TK-3170 E - 4 KEY Board Schematic

Kenwood TK-3170 E
69 pages
Print Icon
To Next Page IconTo Next Page
To Next Page IconTo Next Page
To Previous Page IconTo Previous Page
To Previous Page IconTo Previous Page
Loading...
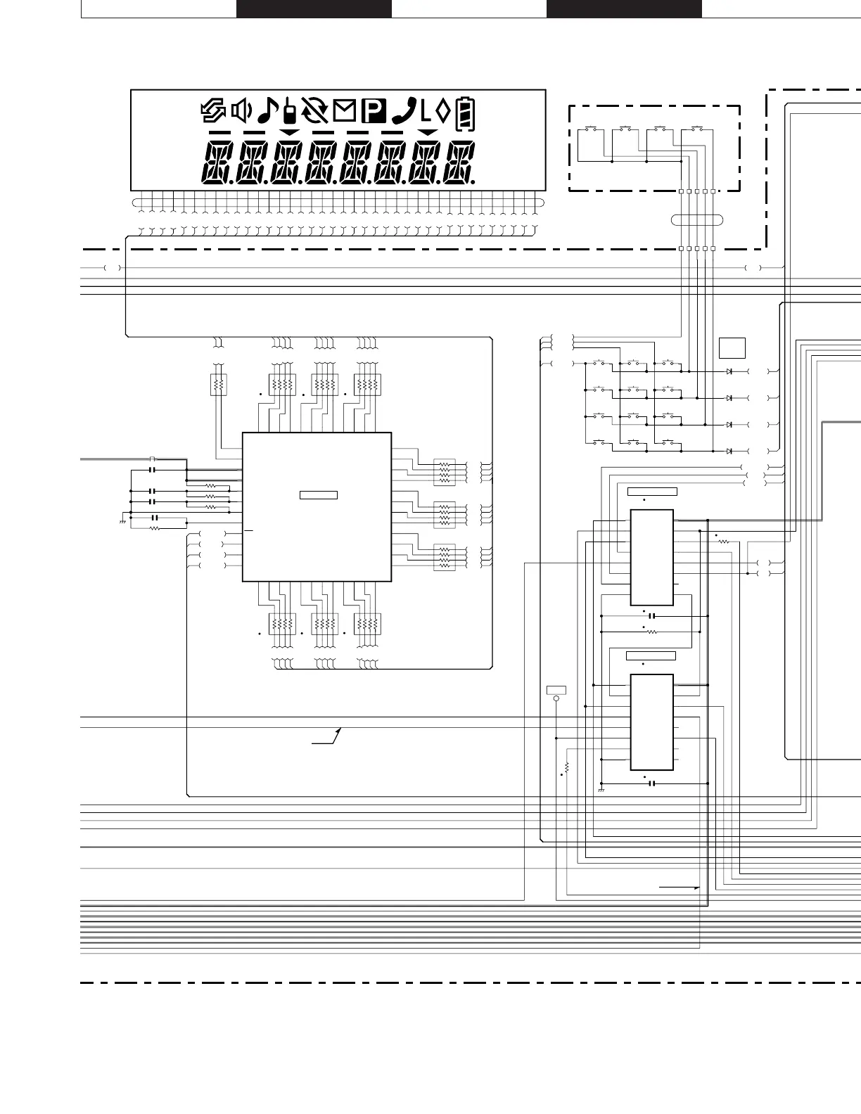
SCHEMATIC DIAGRAM TK-3170
55
X57-701 (B/4) 2/6, X57-701 (D/4) 1/1
TX-RX UNIT (X57-701X-XX) (B/4)
JIHGF
R42 10k
S30
NARROW
C39
0.047u
S11
S20
KEY1I
CP23
1k*4
S28
S33
S15
S9
S18
S14
S31
S6
KEY2O
KEY4O
R36 43k
S14
CP24
1k*4
LCDDAT
S1
S25
S32
S2
R40
47k
S17
S23
S26
1
P1/S1
2
P2/S2
3
P3/S3
4
P4/S4
5
P5/S5
6
P6/S6
7
P7/S7
8
P8/S8
9
S9
10
S10
11
S11
12
S12
13
S13
14
S14
15
S15
16
S16
17
S17
18
S18
19
S19
20
S20
21
S21
22
S22
23
S23
24
S24
25
26
27
28
29
30
31
32
33
34
35
36
37
COM3
38
COM4
39
VDD
40
VLCD
41
VLCD1
42
VLCD2
43
VSS
44
oSC
45
INH
46
CE
47
CL
48
DI
S33
1
2
3
CLK
4
5
6
7
8
9
10
11
12
13
14
15
16
S19
S7
KEY3I
S6
S30
S19
S11
S5
S22
S17
S18
CP34
1k*4
COM2
S21
S32
S16
1
STRB
2
DATA
3
CLK
4
5MSC
5
SAVE
6
STSW
7
AM1
8
VSS
9
10
11
12
13
14
15
16
COM1
C38
0.047u
S5
C43
0.01u
S4
CP32
1k*4
KEY1O
S21
S34
S34
S29
C42 680p
CP11
1k*2
R44 10k
CP36
1k*4
R37
10k
S8
LCDINH
S13
S3
TX
KEY3O
S1
S16
S10
COM3
COM4
L15
RX
CP13
1k*4
S28
DMUTE
S24
S15
CP18
1k*4
LCDCE
S12
SEL
KEY2I
S29
S27
LCDCLK
S9
CP12
1k*4
S20
B38-0901-05
R31
10k
S24
S31
S26
S27
KEY4I
S12
R43 10k
COM4
CP16
1k*4
COM1
S25
C44
0.01u
S4
WIDE
C40
470p
S2
S8
S13
S7
S10
S22
COM3
COM2
S23
S3
5C
0
E29-1204-X4
5M
5MS
E29-1205-X4
C
7
4
LEDG
6
SSB
2
5
LEDR
9
SAVE
BATT
LCDBL
B
SB
5RC
3
INT
5T
5MSC
1
S
5MS
5M
RESET
A
8
SSBC
*
STSW
SSBC
TX
5R
LCDBL
5TC
#
4KEY BOARD
(X57-701X-XX)(D/4)
QS
Q’S
AQSFT
QTSW
LCDBL
MMUTE
OE
VDD
SHIFT REGISTER
IC5
BU4094BCFV
QS
Q’S
TX
RX
OPST
VOXMUTE
OE
VDD
IC4
BU4094BCFV
SHIFT REGISTER
STRB
DATA
DMUTE
SSBC
WIDE
NARROW
VSS
D27
MA2S111
D26
MA2S111
D24
MA2S111
D25
MA2S111
KEY
INPUT
DETECT
D24-27
S25
S26
S27
S28
S29
S30
S31
S32
S33
S34
COM1
COM2
IC6
LC75834W
LCD DRIVER
STSW
5T
5MS
5TC
5C
SP_M
SFTSTB
5R
BATT
SB
OPST
VOXMUTE
AQSFT
MMUTE
DATA
CLK
SSB
5RC
RESET
INT
SFTOE
5M
VOLIN
LEDR
LEDG
SEL
VOLIN
LEDG
INT
RESET
LEDR
ON:5V
OFF:0V
ON:0V(Lo)
OFF:4.8V(Hi)

Related product manuals