EasyManua.ls Logo

KitchenAid KEMS378S - Page 93

KitchenAid KEMS378S
96 pages
Print Icon
To Next Page IconTo Next Page
To Next Page IconTo Next Page
To Previous Page IconTo Previous Page
To Previous Page IconTo Previous Page
Loading...
7-5
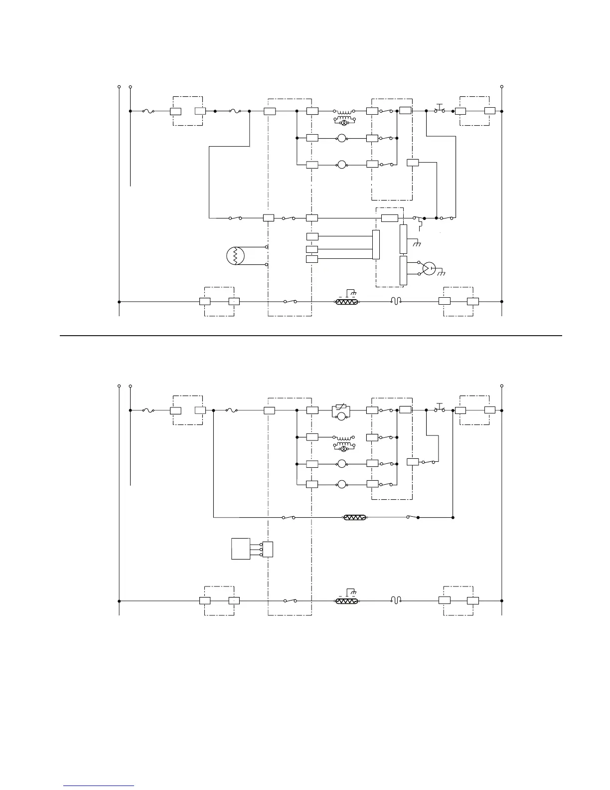
MWO CRISP
L1
BK
L2
R
R
BK
BK
LINE 20A
FUSE
LINE FILTER L1
P32
P33
BK
BR
BR
BR
MONITOR
20A FUSE
MW APPLIANCE
MANAGER
P1-1
P2-6
P2-4
P2-2
P2-1
P2-3
P2-5
P1-2
P3-1
HALOGEN LIGHT
M
M
CONV.
FAN
MOTOR
BK
BK
BR
BR
TURNT
ABLE
4903
3
1
LINE FILTER L2
R
4904
BU
1020
MW APPLIANCE
MANAGER
BK BK
GRILL ELEMENT
BK
4
2
LINE FILTER L2
P31
P34
4 1
SECONDARY
INTERLOCK
SWITCH
BU
BU
W
W
CAVITY
THERMOSTAT
LINE FILTER L1
W
W
N
GRILL
THERMOSTAT
2
1
4
PRIMARY
INTERL
OCK SWITCH
P6
MW LIGHT
TRANSFORMER
1
P8-3
P8-2
P8-1
CN702
C
N
7
0
1
C
N
7
0
1
C
N
7
0
3
MAGNETRONF
F
A
Y
W
Y
W
BK
MWO EASY CONVECT
L1
BK
L2
R
R
BK
BK
LINE 20A
FUSE
LINE FILTER L1
P32
P33
BK
BR
BR
BR
MONITOR
20A FUSE
MW APPLIANCE
MANAGER
P1-1
P2-8
P2-6
P2-4
P2-2
P2-1
P2-3
P2-5
P2-7
P1-2
P3-1
CONV.
THERMOACTUA
TOR
M
MW LIGHT
TRANSFORMER
HALOGEN LIGHT
M
M
MAGNETRON FAN
MOTOR
BK
BK
BR
BR
TURNT
ABLE
4905
P4
CONV.
TEMP
3
1
LIN
E FILTER L2
R
4905
CONV. 1200W
BU
1020
MW APPLIANCE
MANAGER
BK BK
GRILL ELEMENT
BK
4
2
LINE FILTER L2
BU
P31
P34
4 1
SECONDARY
INTERLOCK
SWITCH
BU
BU
W
W
CAVITY
THERMOSTAT
LINE FILTER L1
W
W
W
N
GRILL
THERMOSTAT

Table of Contents

Related product manuals