EasyManua.ls Logo

KITO ER2M - Page 88

KITO ER2M
144 pages
Print Icon
To Next Page IconTo Next Page
To Next Page IconTo Next Page
To Previous Page IconTo Previous Page
To Previous Page IconTo Previous Page
Loading...
88
Periodic Inspection (continued)
Chapter 2 Inspection
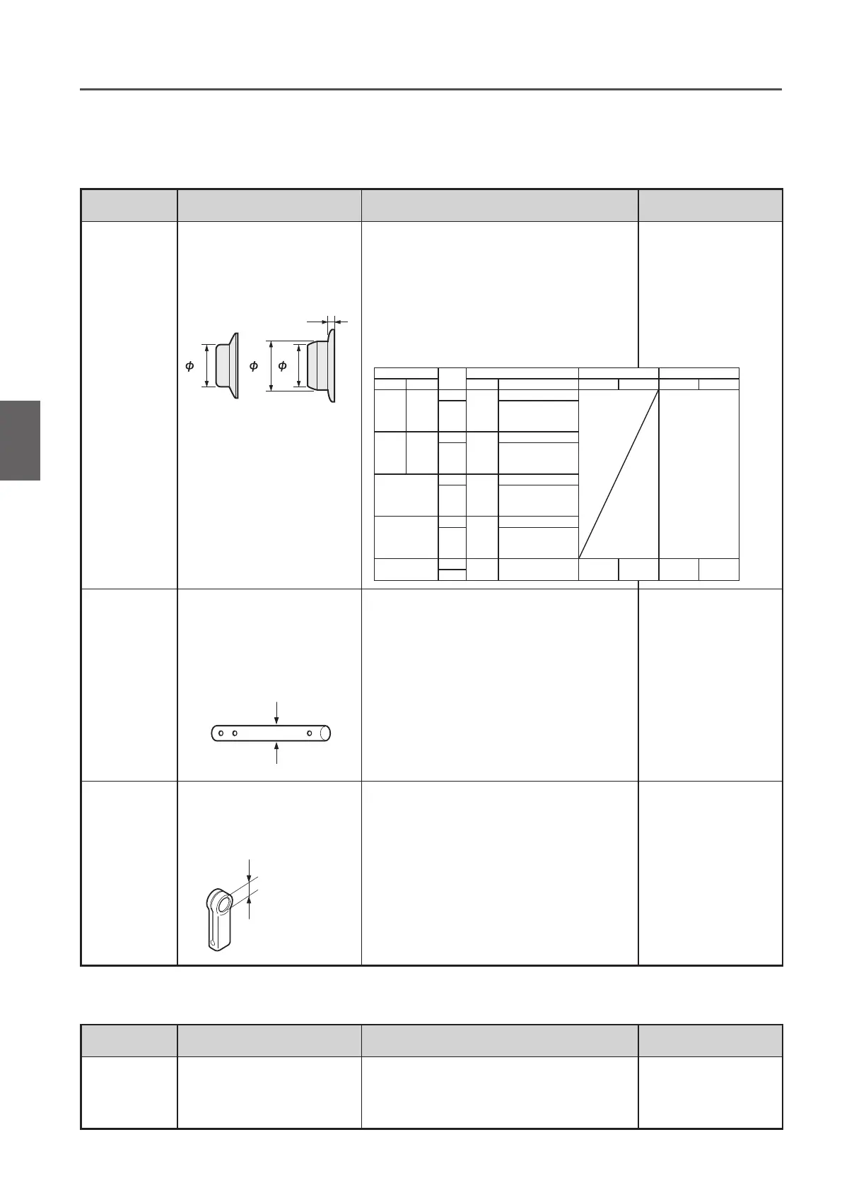
Manual Trolley (TSG/TSP) Periodic Inspection
Body size Components
Item Check method Criteria When failed
Wheel • Check visually.
• Measure dimensions D and
t with vernier caliper.
t
d
0.5~3t0.5~3t 5t5t
D D
• Measure the outer diameter
with vernier caliper.
• To have no apparent deformation and
damage
• The abrasion of the wheel should not be less
than the limit value
• To have no deformation of contact surface
• Tohavenostreaksonange
Capacity
Beam
D (mm) d (mm) Flange thickness t (mm)
TSP TSG
Standard Limit Standard Limit Standard Limit
125kg
250kg
500kg
-
H-steel
60
58.5
To have no considerable
damage or crack at the
ange.
I-steel
To have no considerable
damage or crack on the
contact surface.
1t
125kg
250kg
500kg
1t
H-steel
71
69.5
I-steel
To have no considerable
damage or crack on the
contact surface.
1.5t, 2t
H-steel
85
83.5
I-steel
To have no considerable
damage or crack on the
contact surface.
2.5t, 3t
H-steel
100
98.5
I-steel
To have no considerable
damage or crack on the
contact surface.
5t
H-steel
118 112 113 107 9.6 6.7
I-steel
Replace the Wheel.
Lifting Shaft
• Check visually.
• Measure the shaft diameter
with vernier caliper.
Shaft diameter
• To have no considerable deformation and
abrasion
• The shaft with obvious deformation reaches at
the service limit.
• Abrasion limit of the shaft and the hole is 5 %
of its diameter respectively.
Replace the Lifting
Shaft.
Suspender
• Check visually.
• Measure the diameter of the
hole with vernier caliper.
Hole diameter
• The Suspender must be combined securely
with the top pin and the Yoke bolt.
• Abrasion limit of the hole is 5 % of its diameter.
Replace the
Suspender.
Item Check method Criteria When failed
Rail Surface • Check visually. • To have no attachment of paint, oil and foreign
matter.
• To have no dust and powder due to abrasion
Clean the Travel Rail.
Travel Rail
Manual Trolley (TSG/TSP) Periodic Inspection Periodic Inspection
2

Table of Contents

Related product manuals