EasyManua.ls Logo

Klarstein Barett - Page 47

Klarstein Barett
Print Icon
To Next Page IconTo Next Page
To Next Page IconTo Next Page
To Previous Page IconTo Previous Page
To Previous Page IconTo Previous Page
Loading...
47
ES
1. Apague la unidad antes de arreglarla.
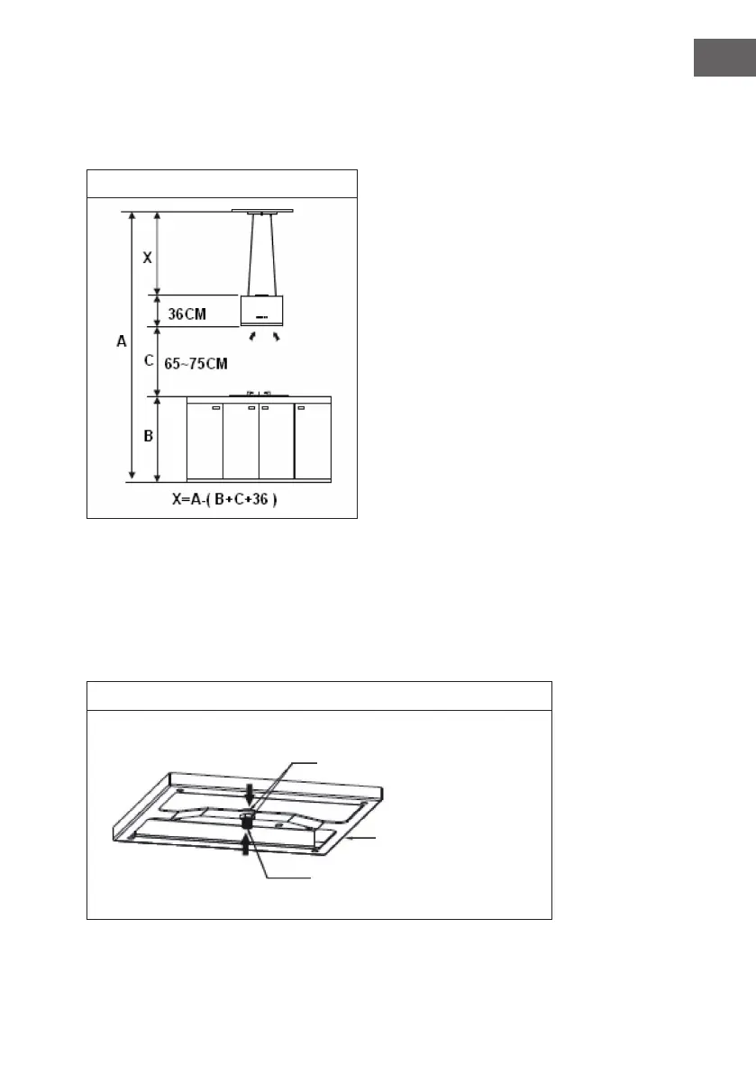
2. La campana de cocina debe colocarse a una distancia de 65-75 cm de la
supercie de cocción para obtener un efecto óptimo. Véase la imagen 1
Imagen 1
3. El techo debe ser capaz de soportar un peso de al menos 120 kg y el grosor del
techo debe ser ≥ 30 mm.
4. Fije el cilindro de tornillo a la tabla colgante y utilice dos tuercas de tornillo M10
para jar el cilindro de tornillo a la tabla colgante desde arriba y desde abajo. El
extremo superior del cilindro del tornillo sobrepasa la tuerca en 1 mm (ver imagen
2).
Imagen 2
Longitud
del cable
de acero
Tuercas de tornillo M10
Tabla para colgar
Cilindro de tornillo

Table of Contents

Related product manuals