EasyManua.ls Logo

Klarstein Barett - Page 67

Klarstein Barett
Print Icon
To Next Page IconTo Next Page
To Next Page IconTo Next Page
To Previous Page IconTo Previous Page
To Previous Page IconTo Previous Page
Loading...
67
FR
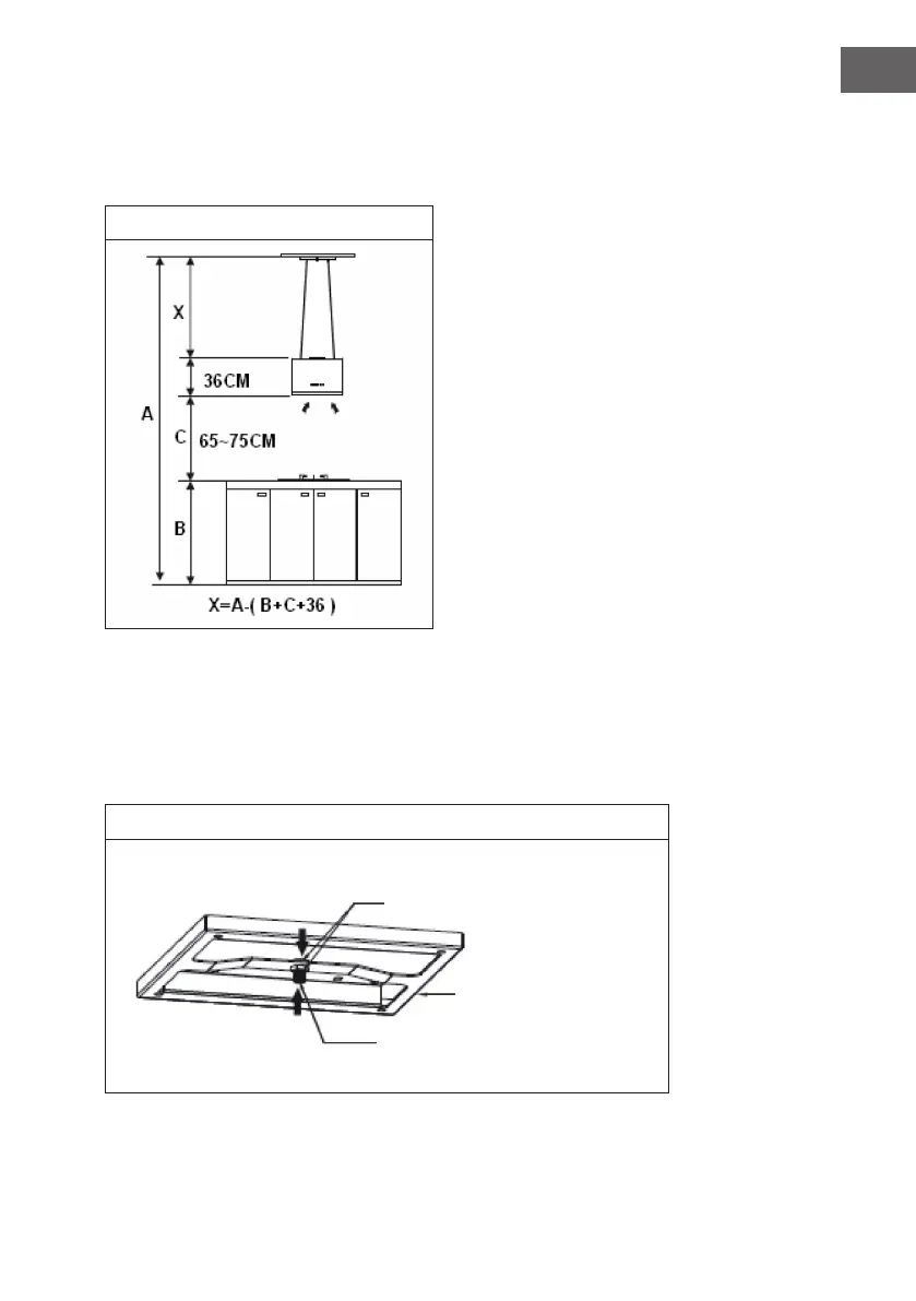
1. Mettez l'appareil hors tension avant de la xer.
2. La hotte aspirante doit être installée à une distance de 65 à 75 cm au-dessus de la
surface de cuisson an d'obtenir une efcacité optimale. Cf. image 1.
Image 1
3. Le plafond doit pouvoir supporter un poids d'au moins 120 kg et son épaisseur doit
être ≥ 30 mm.
4. Fixez le cylindre à vis au panneau d'accrochage et utilisez deux écrous M10
pour xer le cylindre à vis au panneau de suspension par le haut et par le bas.
L'extrémité supérieure du cylindre à vis dépasse l'écrou de 1 mm (cf. image 2).
Image 2
Longueur
du câble
métallique
Écrous à vis M10
Panneau d'accrochage
Cylindre à vis

Table of Contents

Related product manuals