EasyManua.ls Logo

Klarstein Barett - Page 7

Klarstein Barett
Print Icon
To Next Page IconTo Next Page
To Next Page IconTo Next Page
To Previous Page IconTo Previous Page
To Previous Page IconTo Previous Page
Loading...
7
DE
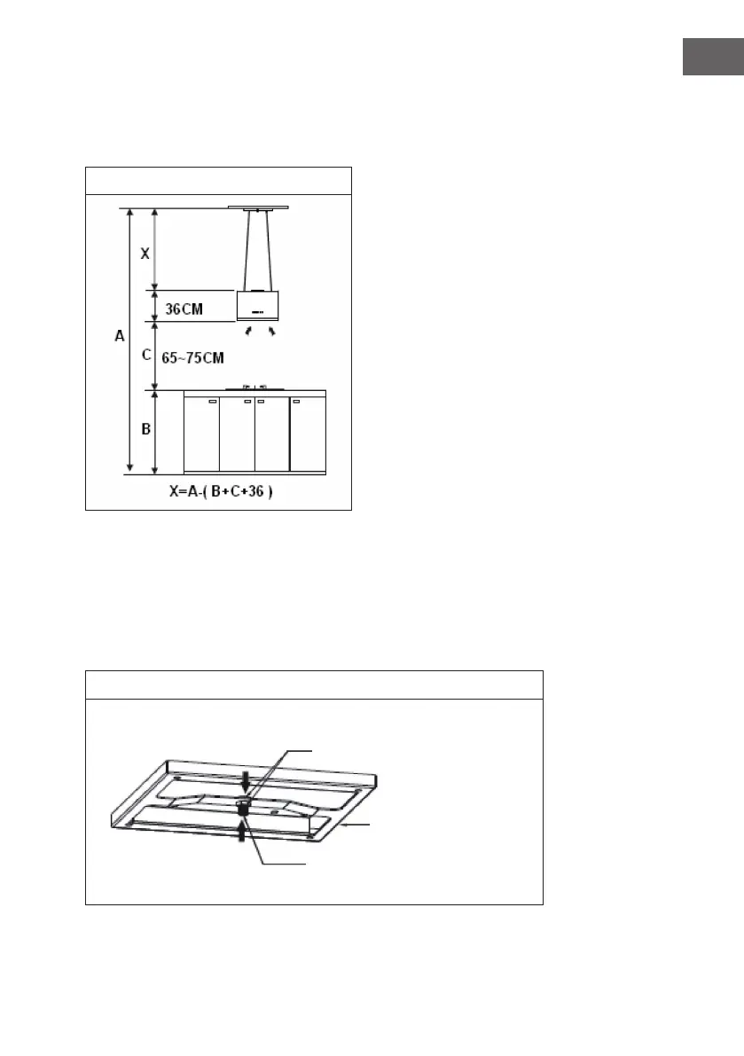
1. Schalten Sie das Gerät vor dem Befestigen aus.
2. Die Dunstabzugshaube sollte in einem Abstand von 65-75 cm zur Kochäche
aufgestellt werden, um eine optimale Wirkung zu erzielen. Siehe Bild 1.
Bild 1
3. Die Decke muss ein Gewicht von mindestens 120 kg tragen können, und die Dicke
der Decke muss ≥ 30 mm sein.
4. Befestigen Sie den Schraubenzylinder am Hängebrett und verwenden Sie zwei
M10-Schraubenmuttern, um den Schraubenzylinder von oben und unten am
Hängebrett zu befestigen. Das obere Ende des Schraubenzylinders überragt die
Mutter um 1 mm (Siehe Bild 2).
Bild 2
Länge des
Drahtseils
M10-Schraubenmuttern
Hängebrett
Schraubenzylinder

Table of Contents

Related product manuals