EasyManua.ls Logo

Klarstein Barett - Page 87

Klarstein Barett
Print Icon
To Next Page IconTo Next Page
To Next Page IconTo Next Page
To Previous Page IconTo Previous Page
To Previous Page IconTo Previous Page
Loading...
87
IT
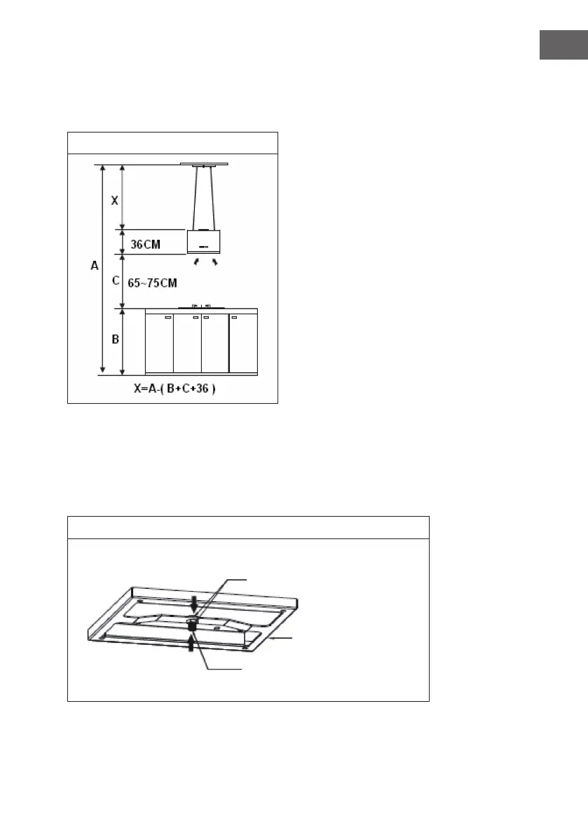
1. Spegnere il dispositivo prima di ssarlo.
2. Per un'efcacia ottimale, la cappa aspirante deve essere montata a una distanza di
65-75 cm sopra il piano cottura. V. immagine 1.
Immagine 1
3. Il softto deve essere in grado di sostenere un peso di almeno 120 kg e il suo
spessore deve essere ≥ 30 mm.
4. Fissare il cilindro lettato al pannello di sospensione con due dadi a vite M10
dall'alto e dal basso. L'estremità superiore del cilindro lettato sporge dal dado di
1 mm (v. gura 2).
Immagine 2
Lunghezza
del cavo
metallico
Dadi a vite M10
Pannello di sospensione
Cilindro lettato

Table of Contents

Related product manuals