EasyManua.ls Logo

KLH SC 2 - 2.2 Cooling equipment

Default Icon
31 pages
Print Icon
To Next Page IconTo Next Page
To Next Page IconTo Next Page
To Previous Page IconTo Previous Page
To Previous Page IconTo Previous Page
Loading...
KLH Kältetechnik GmbH
u n i v e r s a l c h i l l e r s
ENGLISH
- 10 /31- 14.12.2011 / 01.00
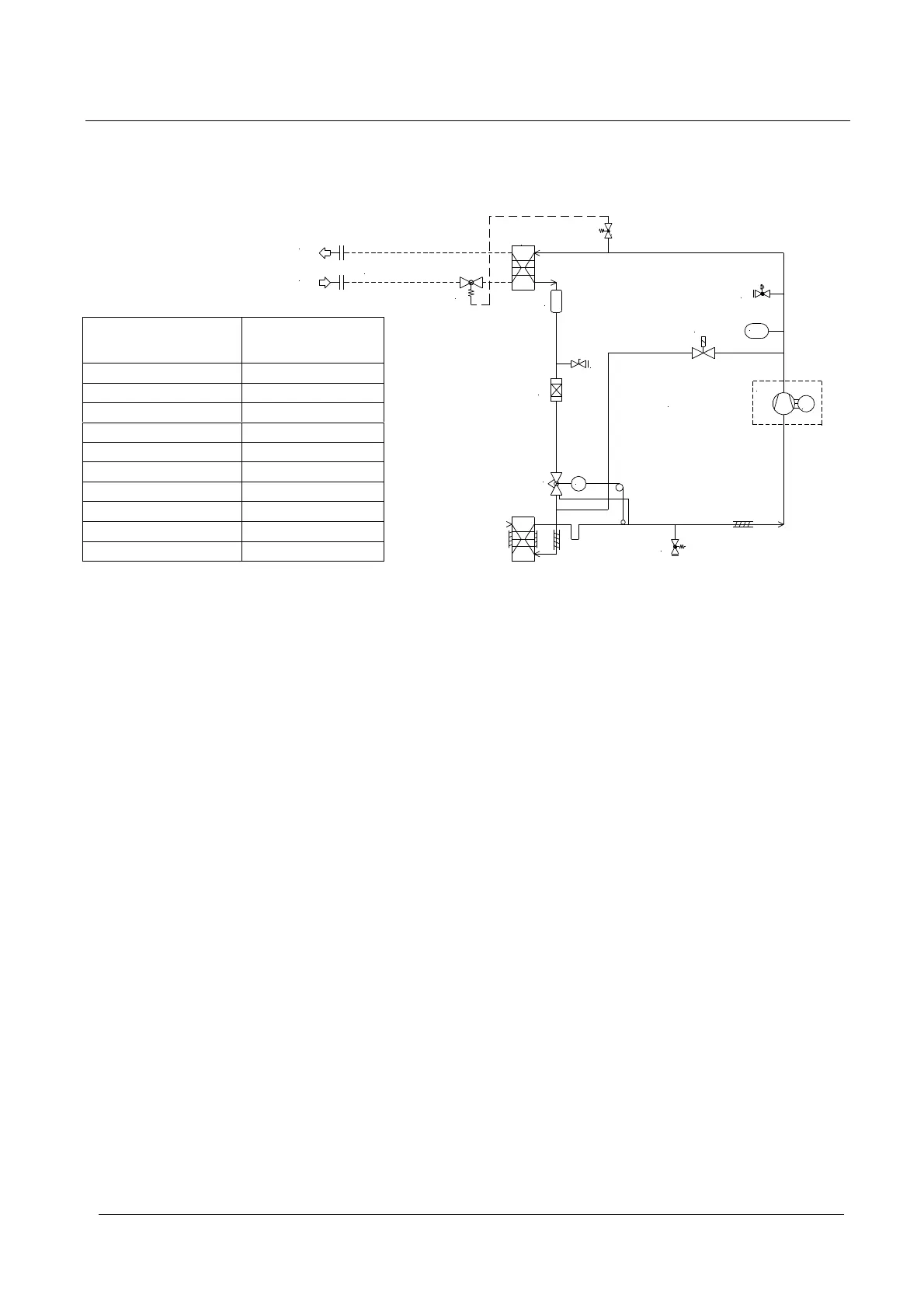
2.2 Cooling equipment
2.2.1 SC 2 (water-cooled)
M
TC
4
33
6
8
20
20
20
PZH
94
2
20
IG 1/2"
1
IG 1/2"
10
KM
KW
5
The heat eliminated from the water circuits by means of an water-cooled cooling
machine. The cooling machine consist of a closed coolant circuit including all
components required. The coolant circuit circulates the coolant used as a working
medium.
Hermetic compressor (1)
- Hermetic compressor provided with a suction-gas cooled drive motor, motor protection by
means of an external monitoring module, oil-level glass, and external vibration-elastic
installation.
Water-cooled condenser (2/3)
- Plate heat exchanger, copper soldered type
Evaporator (5)
- Plate heat exchanger made of high-quality steel, copper soldered type
Pressure switch (HP)
- Pressure switch (High Pressure) (33)
Pipe system
- Closed pipe system made of special copper tube, provided with collector (6) filter dryer (8)
and service connections (20)
Inside the evaporator (5), the process heat generated is transfer from the water circuit to
the coolant circuit, at low evaporation temperature. It is then delivered to the condenser (2),
via compressor (1), together with the coolant, in a gaseous condition. At the condenser, the
process heat is finally discharged to the water circuit.
The condenser pressure at the refrigeration circuit is constantly operated by the pressure
operated water valve.
Due to the heat release to the cooling water circuit, the coolant is liquefied and returned
to evaporator (5), via expansion valve (4).
Naming
Cooling equipment
circuit
Compressor
1
Condenser
2
Expansions valve
4
Evaporator
5
Tube expansion
6
Filter drier
8
Solenoid valve
10
Service connections
20
Pressure switch (HP)
33
Two-way valve
94
2 Description

Related product manuals