EasyManua.ls Logo

Kohler 10CCE - Page 50

Kohler 10CCE
57 pages
Print Icon
To Next Page IconTo Next Page
To Next Page IconTo Next Page
To Previous Page IconTo Previous Page
To Previous Page IconTo Previous Page
Loading...
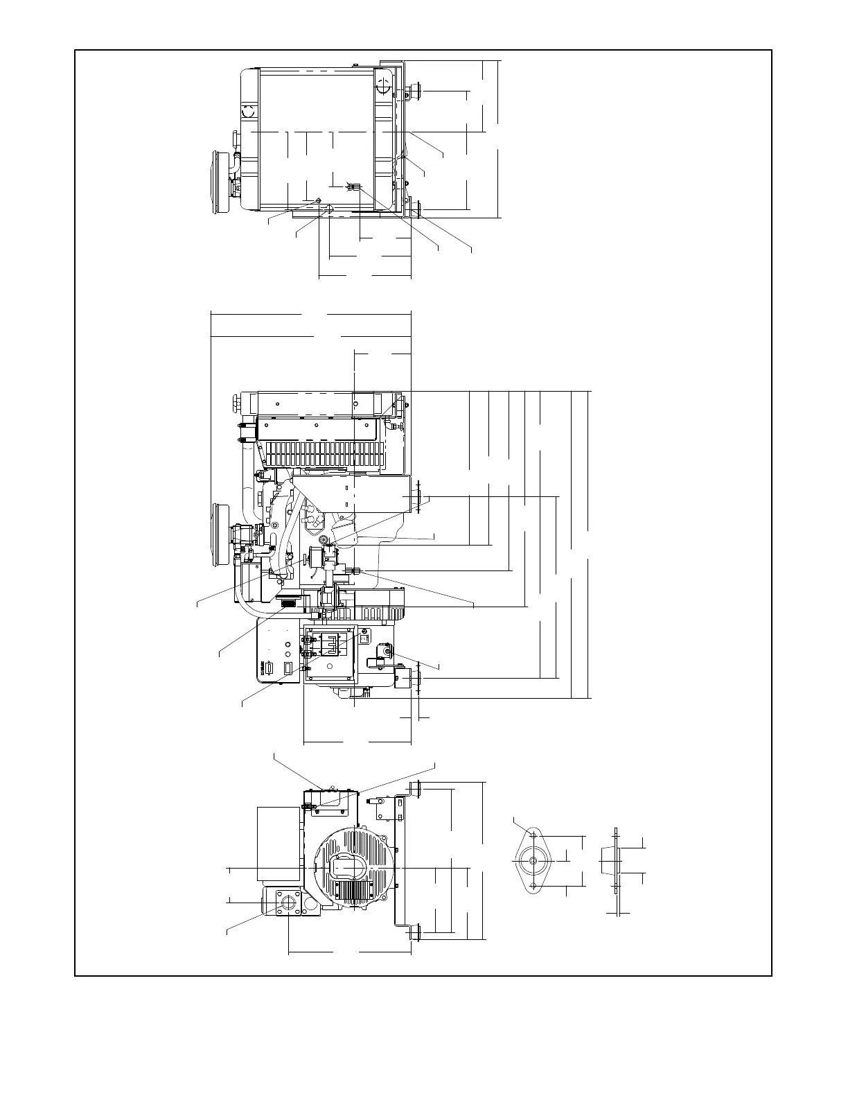
TP-5977 7/98 Installation 39
ADV-5753-C
NOTE--
DIMENSIONS IN ( )ARE
MILLIMETER EQUIVALENTS.
TYPICAL VIBRO MOUNT
MOUNTING DIMENSIONS--
VIBRO MOUNT CAN BE
TURNED AT ANY ANGLE.
STRAIGHT
GAS
INLET
[10 KW]
OIL
DRAIN
POSITIVE
BATTERY
CONNECTION
5.74
(146)
OPTIONAL
1/4 STUD
CONNECTIONS
FOR LOAD
LEADS
STRAIGHT GAS
INLET 3/4 N.P.T.
LP LIQUID WITHDRAWAL
INLET 1/4 N.P.T.F.
42.88
(1089)
[10 KW]
9.99
(254)
21.98
(558)
17.10
(434)
.94 (24) NOM.
COMPRESSED
HEIGHT
7.92
(201)
OIL
FILTER
EXHAUST OUTLET
1 1/2 N.P.T.F.
OPTIONAL
LINE CIRCUIT
BREAKER
1.74
(44)
EXHAUST
OUTLET
OIL FILL
30.13
(765)
8.99
(228)
9.99
(254)
22.00
(559)
14.80
(376)
27.40
(696)
[12 KW]
25.27
(642)
[12 KW]
45.00
(1143)
.531 (13) DIA.
4 MTG. HOLES
C.L. OF
ENGINE
28.00
(711)
[LP LIQUID
WITHDRAWAL]
11.42
(290)
1.75
(44)
DIA.
3.47
(88)
.16
(4)
.34 (9) DIA.
2 MTG. HOLES
[STRAIGHT GAS]
21.52
(547)
22.20
(564)
9.57
(243)
12.92
(328)
LP LIQUID
WITHDRAWAL
INLET
COMBINATION
GAS/GASOLINE
GASOLINE
INLET
1/4 N.P.T.F.
10.76
(273)
20.00
(508)
10.81
(275)
15.03
(382)
25.14
(639)
4.87
(124)
7.16
(182)
7.64
(194)
COMBINATION
GAS/GASOLINE
GASOLINE INLET
[COMBINATION
GAS/GASOLINE]
28.81
(732)
[STRAIGHT GAS]
COMBINATION
GAS/GASOLINE
SELECTOR SWITCH
Figure 6-13. 10CCE/CEZ, Straight Gas, LP Liquid, Combination Gas/Gasoline,
3-Phase Dimension Drawing

Related product manuals