EasyManua.ls Logo

Lennox CLIMATIC II - HEAT RECOVERY

Lennox CLIMATIC II
94 pages
Print Icon
To Next Page IconTo Next Page
To Next Page IconTo Next Page
To Previous Page IconTo Previous Page
To Previous Page IconTo Previous Page
Loading...
V2.2
-00
18
HEAT RECOVERY
Function
On air units with heat recovery condenser, to maintain the hot water output temperature as close as possible to
the instruction, whilst adapting the air condenser capacity to the excess thermal capacity to be discharged.
Description
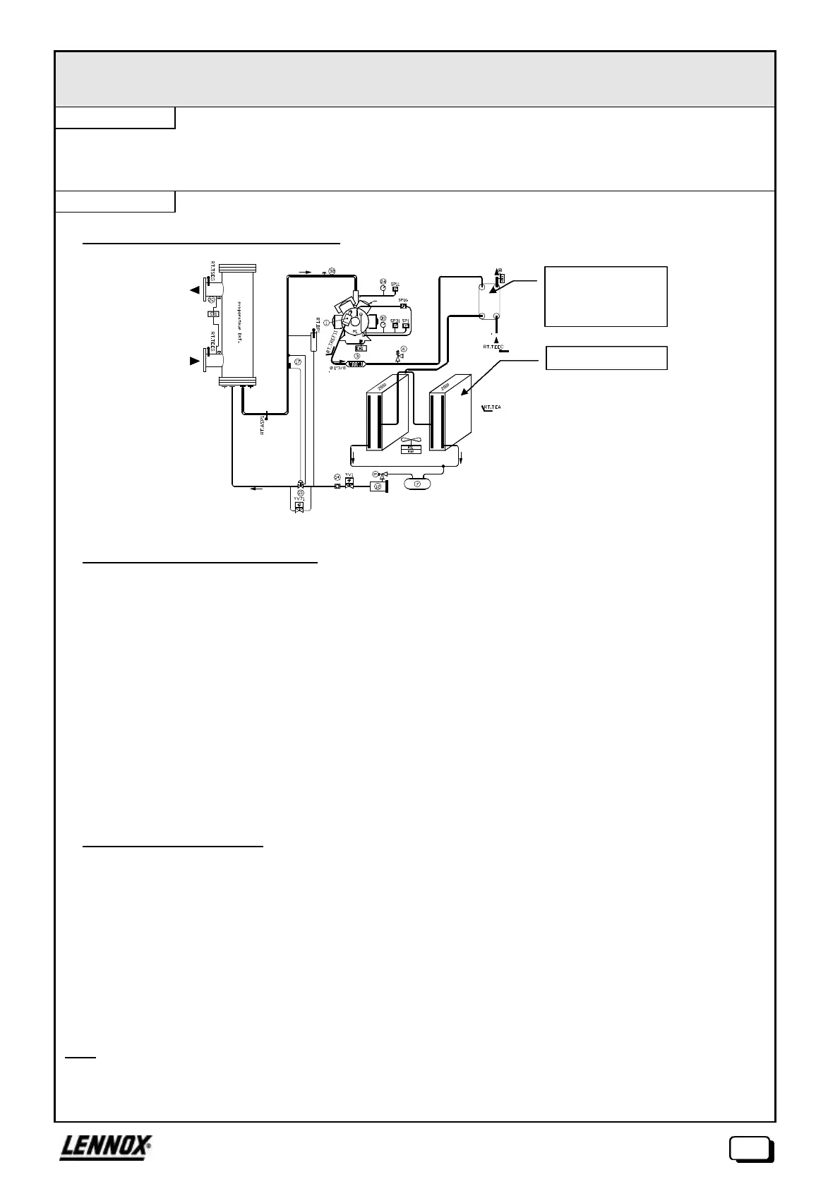
FF Outline diagram of heat recovery process
F Determination of heat recovery mode
Unit operation in heat recovery or total discharge mode is defined by the RECUP parameter which is set to 1 or
0 . RECUP is determined depending on :
FSR ó Recovery condenser flow controller
TSECR ó Hot water output temperature (°C)
CONSEH ó Hot water instruction (°C)
RECUP is set to 1 if : . FSR is on for over 15 seconds
and . TSECR < CONSEH.
RECUP remains at 1 as long as : . FSR has not been off for over 15 seconds
and . TSECR < CONSEH+2°C.
F Control of air condenser fans
On switching to recovery mode, the ventilation thermostat for circuit n THVn is forced to 0 for 5 seconds.
If the high pressure of circuit n exceeds 23 bar, THVn is increased by 1 stage. The ventilation thermostat
continues to be incremented by 1 every TEMPOV (time interval) as long as the condition on the pressure is
satisfied. Every time THVn is incremented, the value of the hot water output temperature TSECR is memorised
in the variable MTSECR.
In recovery mode, if TSECR becomes lower than MTSECR whilst at least one fan is in operation, the ventilation
thermostat is decremented.
Note: On water units, the CLIMATIC does not include heat recovery
Heat recovery
water condenser
Air condenser

Table of Contents

Related product manuals