EasyManua.ls Logo

Lennox CSC - Electrical Connections

Lennox CSC
33 pages
Print Icon
To Next Page IconTo Next Page
To Next Page IconTo Next Page
To Previous Page IconTo Previous Page
To Previous Page IconTo Previous Page
Loading...
• 22 •
OS
HR/T
DS
AS
AS
HR/T
DPT
DIFS
RS
3
BAC
2
DADS
LDRP
CO2
RS
HR/T
6
5
4
PT1
PT2
1
OS
AS
020S 5G x 4mm² 5G x 16mm²
N/A
4G x 1,5mm²
(STD/HPIF1)
4G x 1,5mm²
(HPIF2/HPIF3)
4G x 2,5mm²
6G x 1,5mm²
4G x 6mm²
6G x 1,5mm²
4G x 10mm²
6G x 1,5mm²
4G x 10mm²
7G x 1,5mm²
6G x 1,5mm² 4G x 1,5mm²
N/A
025S
4G x 6mm² 4G x 16mm²
030S
035S
4G x 10mm²
3 x 35mm²
1 x 16mm²
4G x 6mm²
6G x 1,5mm²
4G x 10mm²
6G x 1,5mm²
040S
045D
4G x 16mm²
3 x 50mm²
1 x 25mm²
055D
4G x 1,5mm²
(STD/HPIF1)
4G x 2,5mm²
(HPIF2/HPIF3)
4G x 10mm²
6G x 1,5mm²
4G x 25mm²
6G x 1,5mm²
4G x 25mm²
7G x 1,5mm²
4G x 1,5mm²
070D
3 x 25mm²
1 x 16mm²
3 x 70mm²
1 x 35mm²
085D
100D
3 x 50mm²
1 x 25mm²
3 x 95mm²
1 x 50mm²
4G x 6mm²
4G x 4mm²
7G x 1,5mm²
7G x 1,5mm²
6G x 1mm²
4G x 2,5mm²
(STD/HPIF1)
2 x (4G x
2,5mm²)
(HPIF2/HPIF3)
4G x 2,5mm²
Installation, Operation and Maintenance manual • CSC/CSH-MIL153E-1217-05/2018
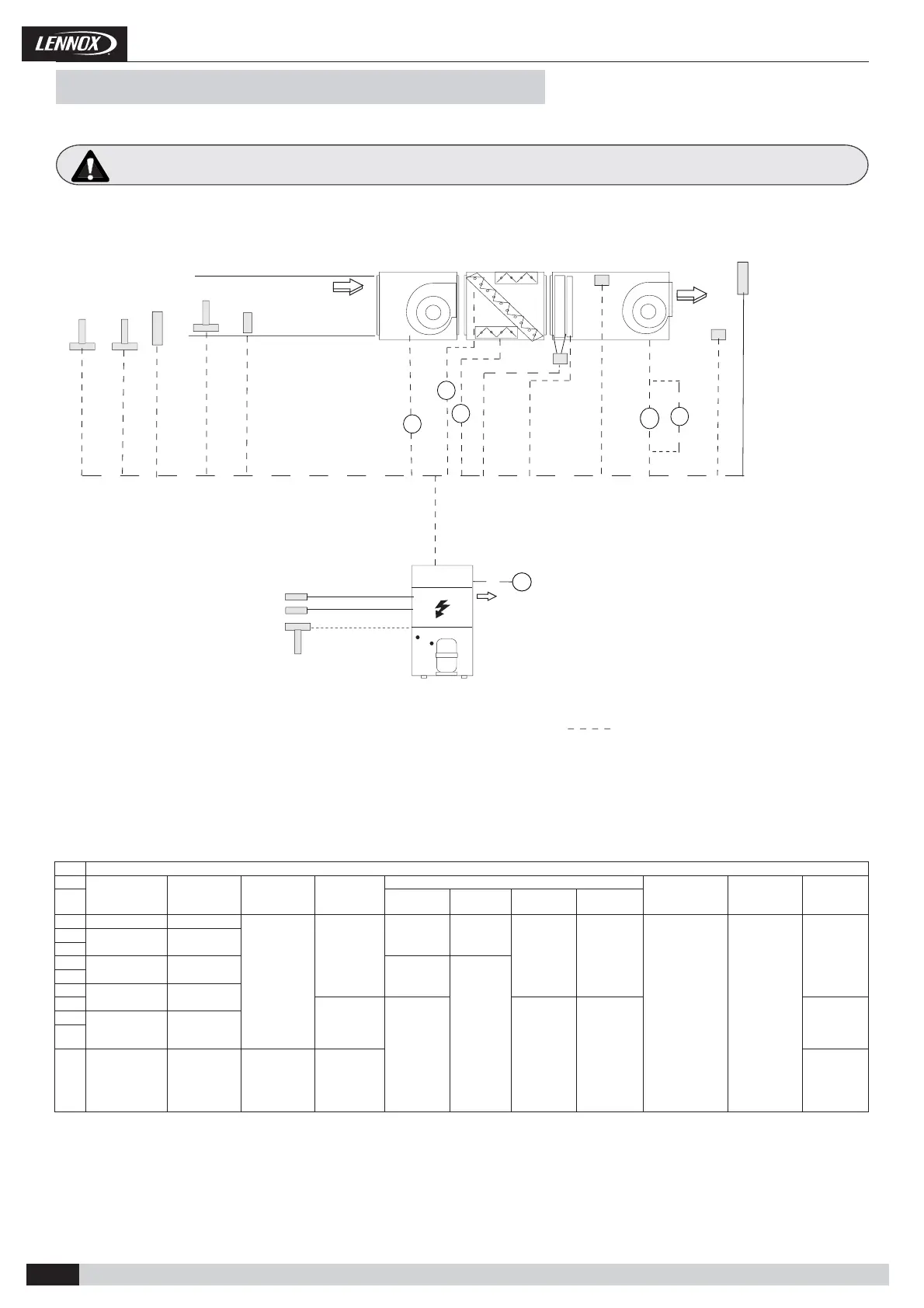
2.- INSTALLATION
2.8.- ELECTRICAL CONNECTIONS
- BEFORE MAKING ANY ELECTRICAL CONNECTIONS, ENSURE THAT ALL CIRCUIT BREAKERS ARE OPEN.
- IN ORDER TO MAKE THE ELECTRICAL CONNECTIONS, FOLLOW THE ELECTRICAL DIAGRAM SUPPLIED WITH THE UNIT.
Note: The length of all cables for connection with air treatment unit unit must be less than 65 m.
To connect by installer
OUTDOOR
SECTION
Electrical
box
POWER SUPPLY
POWER SUPPLY
POWER
SUPPLY 1
POWER
SUPPLY WITH
E.H. 1’
CONNECTION
BETWEEN
CONDENS. UNITS
FAN 2
BATERÍA ELÉCTRICA 3
EXHAUST
FAN 5
RETURN
FAN 6
STANDARD MEDIUM HIGH
MODULA-
TING
FREE-COOLING 4
Air treatment unit. Example

Related product manuals