EasyManua.ls Logo

Lennox EDA - Unit Dimensions

Lennox EDA
24 pages
Print Icon
To Next Page IconTo Next Page
To Next Page IconTo Next Page
To Previous Page IconTo Previous Page
To Previous Page IconTo Previous Page
Loading...
6
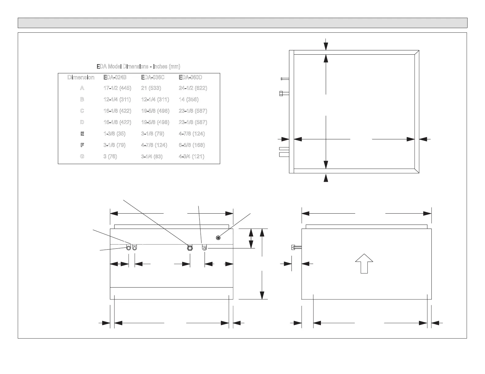
1.6. Unit Dimensions
EDA Model Dimensions - Inches (mm)
11/16
(17)
20-3/4
(527)
D
OUTLET
AIR
OPENING
11/16
(17)
11/16 (17)
11/16 (17)
Dimension EDA-024B EDA-036C EDA-060D
A 17-1/2 (445) 21 (533) 24-1/2 (622)
B 12-1/4 (311) 12-1/4 (311) 14 (356)
C 16-1/8 (422) 19-5/8 (498) 23-1/8 (587)
D 16-1/8 (422) 195/8 (498) 23-1/8 (587)
E 1-3/8 (35) 3-1/8 (79) 4-7/8 (124)
F 3-1/8 (79) 4-7/8 (124) 6-5/8 (168)
G 3 (76)
3-1/4 (83)
4-3/4 (121)
1-7/16 (37)
20-1/8
(511)
22-1/4
(565)
11/16 (17)
GNINEPO RIA TELNIGNINEPO RIA TELNI
9-1/2
(241)
11/16 (17)
C
B
A
E
G
F
1-3/4
(44)
11/16 (17)
1
(25)
2-1/2
(64)
Check/Flow Restrictor
to Vapor Line Te e
Liquid Line
From Outdoor
Unit
Liquid Line to
Indoor TXV
Electrical
Inlet
To Charge Compensator
side connection
AIR FLOW
Figure 2. Unit Dimensions

Related product manuals