EasyManua.ls Logo

Lennox ELA Series

Lennox ELA Series
29 pages
To Next Page IconTo Next Page
To Next Page IconTo Next Page
To Previous Page IconTo Previous Page
To Previous Page IconTo Previous Page
Loading...
Page 27
HEATING - ELECTRIC
REV 0
C
K43-1
K43
DENOTES OPTIONAL COMPONENTS
B3
MOTOR-BLOWER
K43,-1
RELAY-ECONOMIZER BLOWER
R
G
W1
W2
COMMON
K220-1
K220
S149
K220,-1
RELAY-OVERFLOW
S149 SWITCH-OVERFLOW
Y2
Y1
TB1
H1
H2
C2
C1
TB1
TB1
7
2
TB1
TERMINAL STRIP-CLASS II VOLT
072
090,120,150
5
7 2
A
B
A
B
A
B
S49
S50
SWITCH-FREEZESTAT COMPRESSOR 1
SWITCH-FREEZESTAT COMPRESSOR 2
GROUND
1
1
1
24VAC
S50
HE2 HE3
HE4
K16-1
208
A
B
W2
W1W2
C
C
TB1
TB1
S20
K9-1
K32-1
K32
K19-1
F3
T2
HE3
HE4
ELEMENT-ELECTRIC HEAT 3
ELEMENT-ELECTRIC HEAT 4
ELEMENT-ELECTRIC HEAT 1
ELEMENT-ELECTRIC HEAT 2
K19,-1
K32,-1
T2
TRANSFORMER-ELECTRIC HEAT
RELAY-STAGE TWO HEAT
RELAY-SEQUENCER,ELECT HT 1
K19
25
35
6.25
8.3
6.25
8.3
6.25
8.3
6.25
8.3
USE COPPER CONDUCTORS ONLY
W2
W1
TB1
TB1
ELP
UNITS
ELS
UNITS
ELS
UNITS
LINE VOLTAGE FIELD INSTALLED
IF ANY WIRE IN THIS APPLIANCE IS REPLACED, IT
MUST BE REPLACED WITH WIRE OF LIKE SIZE,
RATING,INSULATION THICKNESS AND TERMINATION
WARNING-ELECTRIC SHOCK HAZARD, CAN CAUSE
INJURY OR DEATH. UNIT MUST BE GROUNDED IN
ACCORDANCE WITH NATIONAL AND LOCAL CODES
DISCONNECT ALL POWER BEFORE SERVICING
S149 SWITCH AND K220 RELAY MAY BE FIELD
SUPPLIED OR US AVAILABLE KIT
COMPONENTKEY
FUSE-ELECTRIC HEAT
F3
FUSE-UNIT
F4
HE1
HE2
K9,-1
RELAY-HEAT
CONTACTOR-ELECTRIC HT 1
K15,-1
K16,-1
CONTACTOR-ELECTRIC HT 2
SWITCH-LIMIT,PRIMARY,ELECT HT
S15
S20 SWITCH-LIMIT,SECONDARY ELECT HT
KW
HE1 HE2
HE3 HE4
K15-1
HE1
K16
K15
K9
S15
F4
L1
L2
L3
3
1
S49
K232
9 6
PC
STF
RL
RH
PC
STF
RL
RH
SD
1
2
3
4
5
SD
H2
A183
B
C
1
2
K232
A
B
P248
J248
J248
P248
A96
VFD CONTROL (G)
R S T
WVU
G
G
A96
B3
TB13
TB13
TERMINAL STRIP-CLASS II VOLT
J/P246
J/P247
J/P248
JACK, PLUG-POWER TO VFD
JACK, PLUG-VFD TO MOTOR
JACK, PLUG-VFD CONTROL
K232
RELAY-INVERTER PROTECTION
B3
MOTOR-BLOWER
S50
4
S50 LOCATION ON UNITS WITH TWO
SINGLE SPEED COMPRESSORS
2
4
S50 LOCATION ON UNITS WITH ONE
DUAL SPEED COMPRESSOR
30-10-2017 02:51:33 PM, 7X10
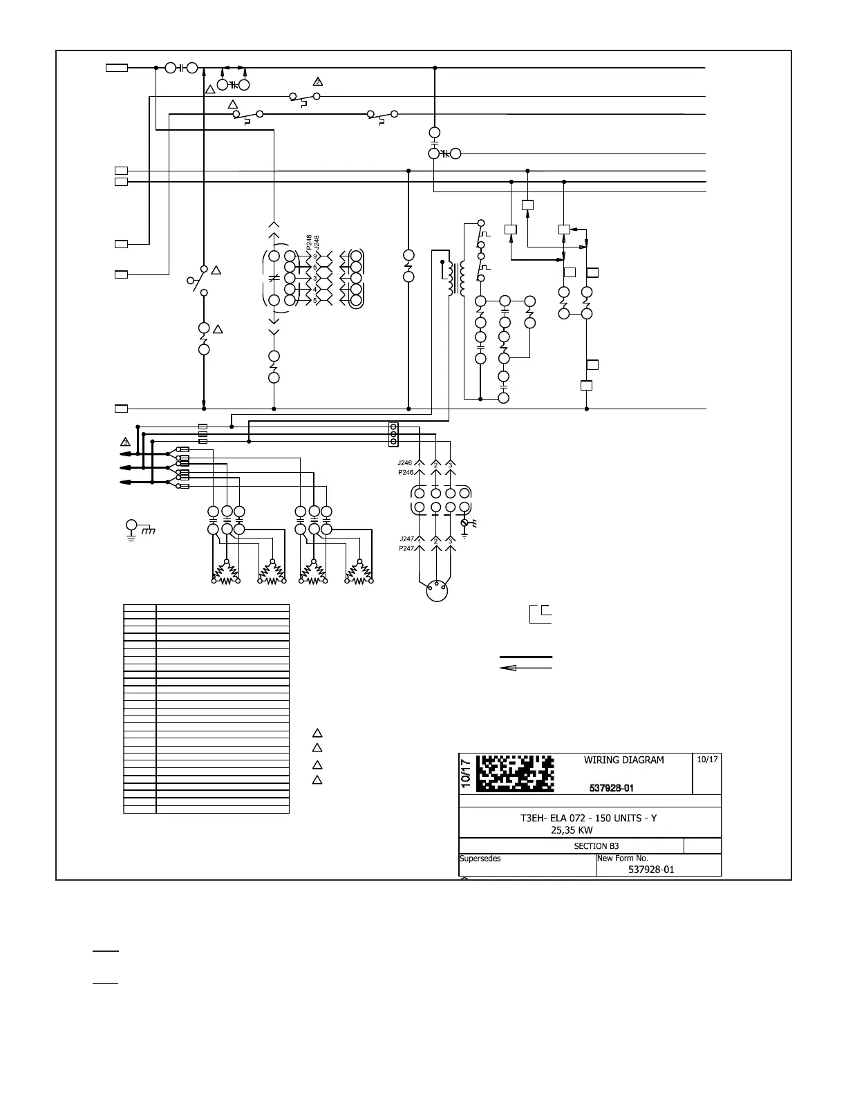
T3EH 072/150, 25−35 kW Y Voltage − Sequence of Op-
eration
First Stage Heat Call
1 - ELS W1 heat demand energizes the
economizer relay K43 and heat relay K9.
ELP Unit will operate in “heat mode” from the
indoor thermostat.
2 - K9−1 closes energizing contactor K15. Second-
stage heat relay K19 is energized. (Unit is ready for
second stage heat but ONLY if there is a W2 call)
3 - K15−1 closes and assuming primary limit S15 and
secondary limit S20 are closed, heating elements
HE1 and HE2 are energized.

Related product manuals