EasyManua.ls Logo

Lennox FCA 60 - Page 105

Lennox FCA 60
142 pages
Print Icon
To Next Page IconTo Next Page
To Next Page IconTo Next Page
To Previous Page IconTo Previous Page
To Previous Page IconTo Previous Page
Loading...
IOM / ROOF-TOP FLEXY™ Series - Page 103
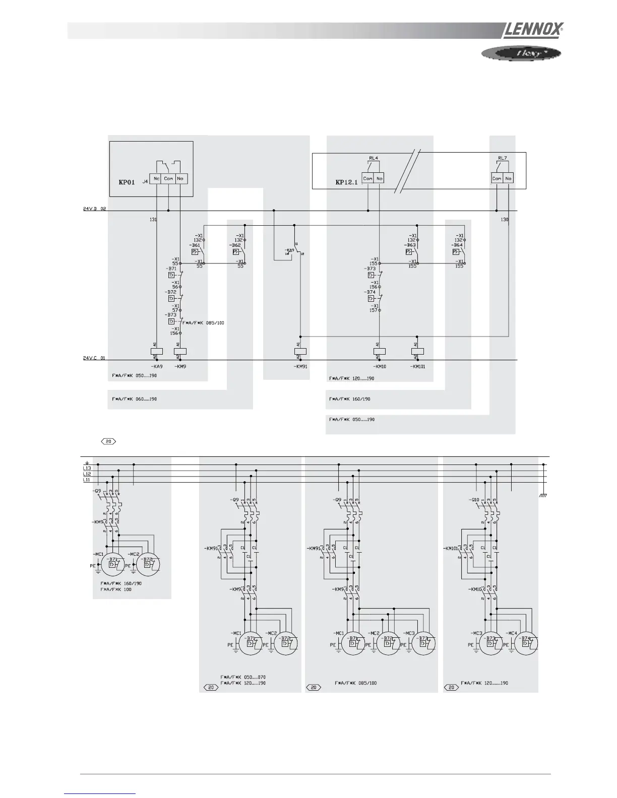
ELECTRICAL WIRING DIAGRAMS
MAIN CURRENT DIAGRAM
Helicoid
Centrifugal
Centrifugal
Helicoid
Helicoid
Helicoid