EasyManua.ls Logo

Lennox FCA 60

Lennox FCA 60
142 pages
To Next Page IconTo Next Page
To Next Page IconTo Next Page
To Previous Page IconTo Previous Page
To Previous Page IconTo Previous Page
Loading...
IOM / ROOF-TOP FLEXY™ Series - Page 105
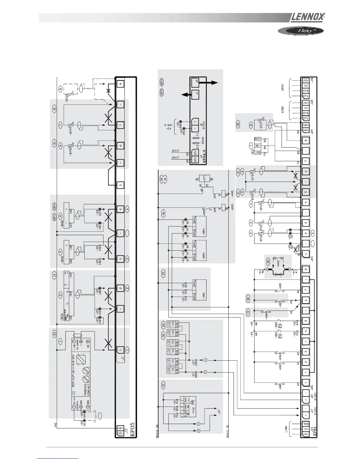
ELECTRICAL WIRING DIAGRAMS
CLIMATIC INPUT FC / FH / FX
Confort Set Point
(GTC)