EasyManua.ls Logo

Lennox FCA 60 - Page 108

Lennox FCA 60
142 pages
To Next Page IconTo Next Page
To Next Page IconTo Next Page
To Previous Page IconTo Previous Page
To Previous Page IconTo Previous Page
Loading...
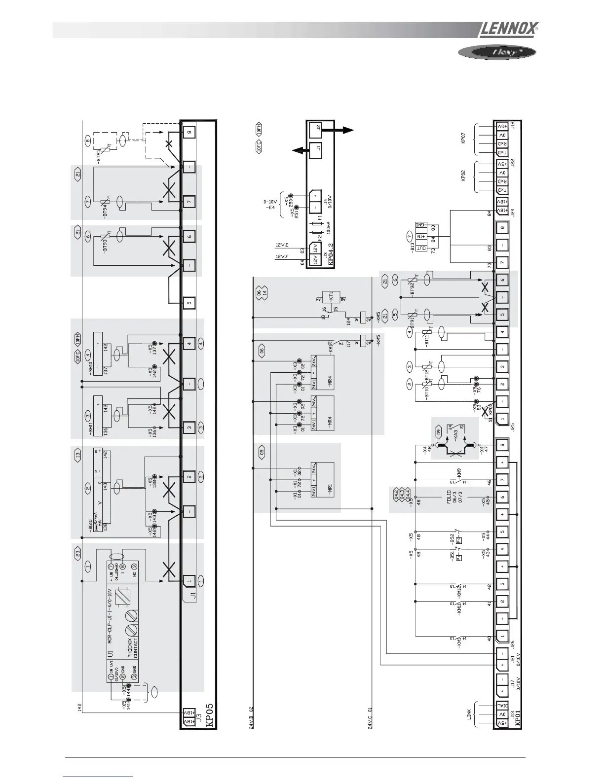
Page 106 - IOM / ROOF-TOP FLEXY™ Series
ELECTRICAL WIRING DIAGRAMS
CLIMATIC INPUT FG / FD