EasyManua.ls Logo

Lennox FCA 60 - Page 109

Lennox FCA 60
142 pages
To Next Page IconTo Next Page
To Next Page IconTo Next Page
To Previous Page IconTo Previous Page
To Previous Page IconTo Previous Page
Loading...
IOM / ROOF-TOP FLEXY™ Series - Page 107
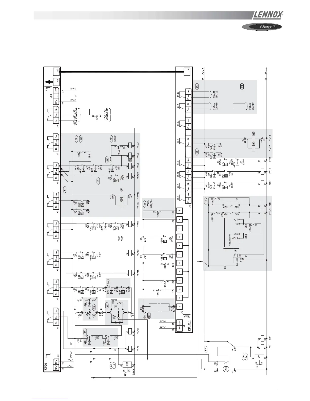
ELECTRICAL WIRING DIAGRAMS
CLIMATIC OUTPUT FC / FH / FX
FAILURE
HU
ALARM
ON
TRANSFER
STARTER
PROGRESSIVE